Barndominium/Shop or "real" House?

/ Barndominium/Shop or "real" House? #181  
What is the advantage to 8 foot tall garage doors? Seems like a huge expense making the entire building taller, and paying more for 8 foot tall doors over the standard 7 foot tall doors.

My ten foot wide, 7 foot tall, insulated doors are almost $1,700 each for just the basic doors. I haven't decided on the openers yet.
 
/ Barndominium/Shop or "real" House? #182  
What is the advantage to 8 foot tall garage doors? Seems like a huge expense making the entire building taller, and paying more for 8 foot tall doors over the standard 7 foot tall doors.

My ten foot wide, 7 foot tall, insulated doors are almost $1,700 each for just the basic doors. I haven't decided on the openers yet.
I put a 7' high door in my garage addition. It's only used for storage, and my little machine, so it's no big deal. But my front garage has 10' high door. I can drive the suburban in with a canoe or my mother in-law's van in with a car-top box. The few times I needed it, I was happy.
 
/ Barndominium/Shop or "real" House? #183  
What is the advantage to 8 foot tall garage doors? Seems like a huge expense making the entire building taller, and paying more for 8 foot tall doors over the standard 7 foot tall doors.

My ten foot wide, 7 foot tall, insulated doors are almost $1,700 each for just the basic doors. I haven't decided on the openers yet.
In the OP's case he simply made the hole larger, not the building. I totally agree with that philosophy. All it cost him is the additional cost of the door size. I had two 7x9 doors in my previous house garage. I hated them. But in that case I didn't have a choice. When we built this time we calculated in larger doors. The wife's attached garage door is 8x12. Much more comfortable to use.
 
/ Barndominium/Shop or "real" House? #184  
I have a 10x10 door on my workshop, and I think it's too small. I should have gone 12 feet wide. Whenever I get around to building my dream workshop building, I'll get the tallest doors that I can fit in the building. Hopefully 14 feet tall so I can drive my backhoe into it.

But for a garage, where you are just driving automobiles into it, why would you want to spend the extra money to make the entire building a foot taller so you could have 8 foot tall doors, when you have a huge workshop right next to the garage with doors that are a lot bigger?
 
/ Barndominium/Shop or "real" House? #185  
Not that much change required for 8ft doors. Seems like a no-brainer:

View attachment 785893
I wasn't paying attention to the inches in the two drawings. It looks like the overall height of the building is increasing just a couple of inches to get the 8 foot tall doors. Not as big of an expense as I first thought.

But I still don't see the advantage to spending the extra money on 8 foot tall garage doors
 
/ Barndominium/Shop or "real" House? #186  
I have a 10x10 door on my workshop, and I think it's too small. I should have gone 12 feet wide. Whenever I get around to building my dream workshop building, I'll get the tallest doors that I can fit in the building. Hopefully 14 feet tall so I can drive my backhoe into it.

But for a garage, where you are just driving automobiles into it, why would you want to spend the extra money to make the entire building a foot taller so you could have 8 foot tall doors, when you have a huge workshop right next to the garage with doors that are a lot bigger?
My shop doors are 12x12. I have to lower the boom on my hoe to get it in. I didn't want to spend the money to raise the building another 2ft to gain a 14ft tall door.

Again, in the OP's case all he did was redraw the door openings. This is based on his comment and his drawings. So in his case, why would he put in smaller doors?

No different than you building a new shop with 16ft eaves and putting in 12ft doors.
 
/ Barndominium/Shop or "real" House? #187  
I wasn't paying attention to the inches in the two drawings. It looks like the overall height of the building is increasing just a couple of inches to get the 8 foot tall doors. Not as big of an expense as I first thought.

But I still don't see the advantage to spending the extra money on 8 foot tall garage doors
I thought Moss gave very good reasons.
 
/ Barndominium/Shop or "real" House? #188  
Vans or pickups with roof racks, even some suburban style vehicles, a pickup with an appliance in the back. Numerous reasons too.
 
/ Barndominium/Shop or "real" House? #189  
I have a 10x10 door on my workshop, and I think it's too small. I should have gone 12 feet wide. Whenever I get around to building my dream workshop building, I'll get the tallest doors that I can fit in the building. Hopefully 14 feet tall so I can drive my backhoe into it.

But for a garage, where you are just driving automobiles into it, why would you want to spend the extra money to make the entire building a foot taller so you could have 8 foot tall doors, when you have a huge workshop right next to the garage with doors that are a lot bigger?
On our garage addition, I put a row of concrete block all the way around the edge to raise it 8". I like to hang things from the ceiling and every bit helps. Bikes, boats, pool toys, car bodies, etc. So any additional height to me is worth it. Even in our 10' front garage I sometimes wish for more headroom.
 
/ Barndominium/Shop or "real" House?
  • Thread Starter
#190  
I wasn't paying attention to the inches in the two drawings. It looks like the overall height of the building is increasing just a couple of inches to get the 8 foot tall doors. Not as big of an expense as I first thought.

But I still don't see the advantage to spending the extra money on 8 foot tall garage doors
The overall building height didn't change. I moved up the floor for the living space which made those celings less than 8 ft, so I put in scissor trusses to gain taller ceilings in the living area.
 
/ Barndominium/Shop or "real" House? #191  
The overall building height didn't change. I moved up the floor for the living space which made those celings less than 8 ft, so I put in scissor trusses to gain taller ceilings in the living area.
I noticed that. Nice touch!!!
 
/ Barndominium/Shop or "real" House?
  • Thread Starter
#192  
So I'm thinking, if I go with scissor trusses in the living space, is there a benefit to having them in the shop space? I plan to have steel on the inside of the shop, walls and ceiling. Probably go with 4ft of plywood up the walls from the concrte slab, then transition to steel, so work benches and other stuff are not digning up the steel and I guess the plywood can be replaced later if it gets beat up.

Scissor trusses make it harder to install steel on the ceiling?

Not sure I can think of many benefits over just normal gable trusse in the shop.
 
/ Barndominium/Shop or "real" House? #193  
So I'm thinking, if I go with scissor trusses in the living space, is there a benefit to having them in the shop space? I plan to have steel on the inside of the shop, walls and ceiling. Probably go with 4ft of plywood up the walls from the concrte slab, then transition to steel, so work benches and other stuff are not digning up the steel and I guess the plywood can be replaced later if it gets beat up.

Scissor trusses make it harder to install steel on the ceiling?

Not sure I can think of many benefits over just normal gable trusse in the shop.
I can't think of a logistical reason to do them in the shop. Your eave is plenty high enough to give you tall ceiling height. Might be some asthetics if that matters to you?

I don't think it would be much harder to install the ceiling. If the center is in the middle of a panel I'd just try to curl it to fit. If that can't be done, cut and then finish with trim.

There's a mile of difference between a 14ft ceiling and a 16ft. My shop is 14, Son's is 16. I don't see any need for scissor trusses in his shop.
 
/ Barndominium/Shop or "real" House?
  • Thread Starter
#194  
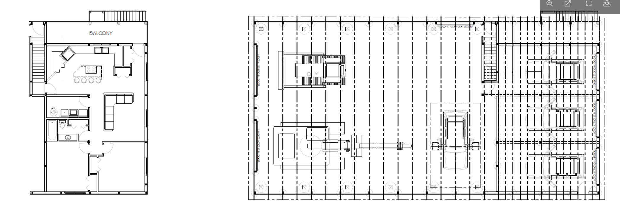
Laying in a 5 Ton Bridge Crane:

5-Ton-Top-Running-Single-Girder.png


Normally the crane columns are tied into the wall columns of the building for anti-racking support. Not sure this can be done with a wood post & beam frame building? Normally these are installed in steel buildings.
 
Last edited:
/ Barndominium/Shop or "real" House? #195  
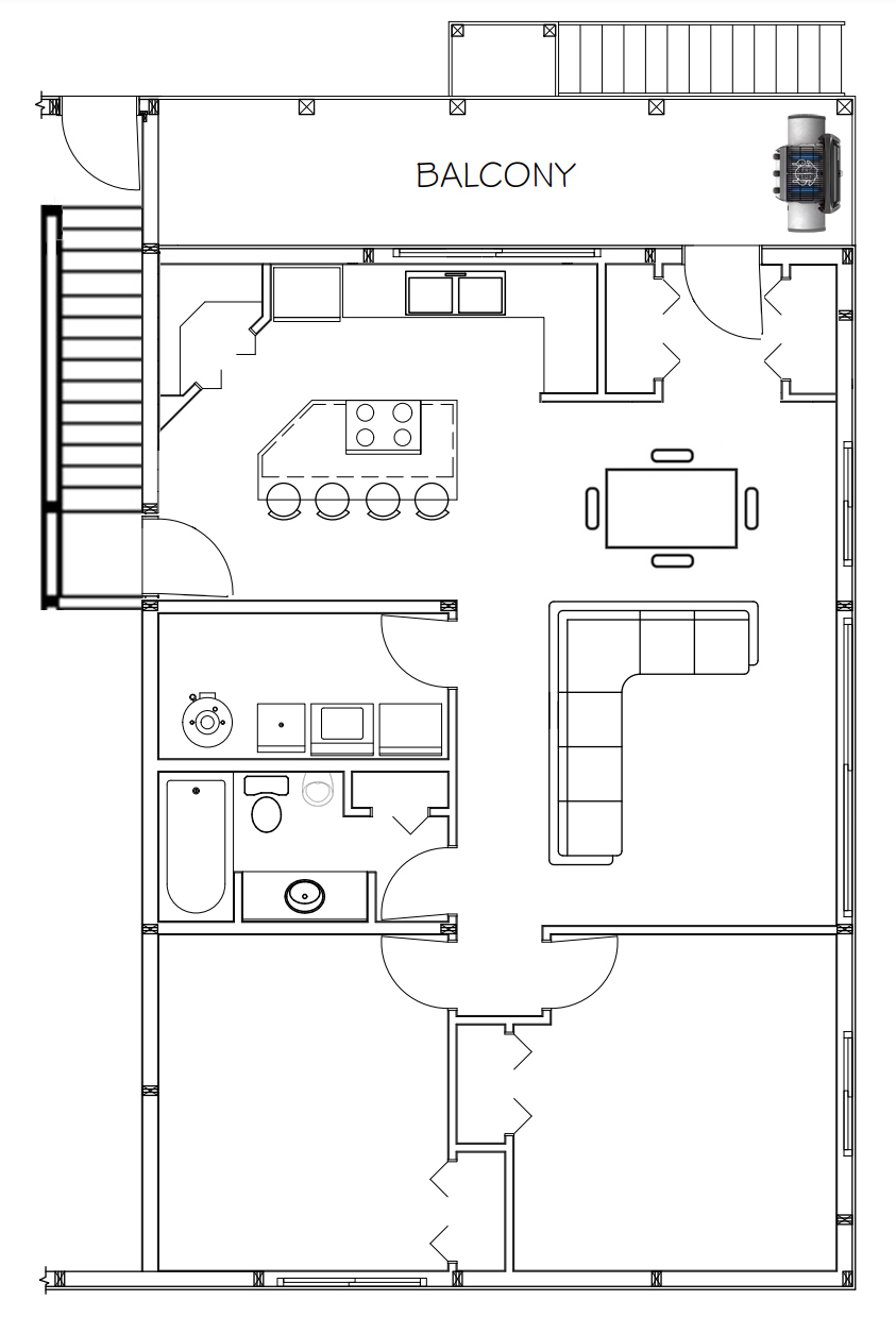
When I saw you fantastic crane I got this crazy idea while thinking of the difficulty of moving your furniture upstairs ...
 

Attachments

  • BARN2.jpg
    BARN2.jpg
    446.2 KB · Views: 144
  • BARN3.jpg
    BARN3.jpg
    194.1 KB · Views: 129
/ Barndominium/Shop or "real" House?
  • Thread Starter
#196  
When I saw you fantastic crane I got this crazy idea while thinking of the difficulty of moving your furniture upstairs ...
That closet arrangement does look better. I was not a fan of the way I had the door to the balcony all the way in the corner.

For the stairs I didn't have a door like you show because I wanted to pull the wall back toward the north and have a removable railing for furniture moving. However a door for the stairwell might be a good idea to further isolate the shop from the living space.
 
/ Barndominium/Shop or "real" House? #197  
For the stairs I didn't have a door like you show because I wanted to pull the wall back toward the north and have a removable railing for furniture moving. However a door for the stairwell might be a good idea to further isolate the shop from the living space.
I figured if I took the stairs out of the well and put them on the east wall of the shop you'd have more room to sort things out 🙂
 
Last edited:
/ Barndominium/Shop or "real" House? #198  
Still need to put in the shop bathroom.
A toilet and sink would fit nicely under a relocated stair case on the east* wall of the shop and tie in easily with your existing plumbing.

*I said north wall but I think it's east.
 

Attachments

  • Barn6.jpg
    Barn6.jpg
    116.1 KB · Views: 133
  • BARN5.jpg
    BARN5.jpg
    207.4 KB · Views: 128
Last edited:
/ Barndominium/Shop or "real" House?
  • Thread Starter
#199  
I figured if I took the stairs out of the well and put them on the east wall of the shop you'd have more room to sort things out.
Yeah, my design started out that way but I moved them in to reduce the square footage. Taxe$$$$...
 
/ Barndominium/Shop or "real" House? #200  
Laying in a 5 Ton Bridge Crane:

View attachment 786011

Normally the crane columns are tied into the wall columns of the building for anti-racking support. Not sure this can be done with a wood post & beam frame building? Normally these are installed in steel buildings.
I want one of these soooo bad. I just can't justify it for no more use than it would get. But I still want one!!!!
 

Marketplace Items

209275 (A59823)
209275 (A59823)
UNUSED RAYTREE REDM32 HYD MULCHER (A60432)
UNUSED RAYTREE...
CAT 930M (A58214)
CAT 930M (A58214)
JOHN DEERE 4450 TRACTOR (A60430)
JOHN DEERE 4450...
2013 Ford F-250 Pickup Truck (A55973)
2013 Ford F-250...
Dvorak Model 3072A Hydraulic Ironworker S/A Towable Trailer (A59228)
Dvorak Model 3072A...
 
Top