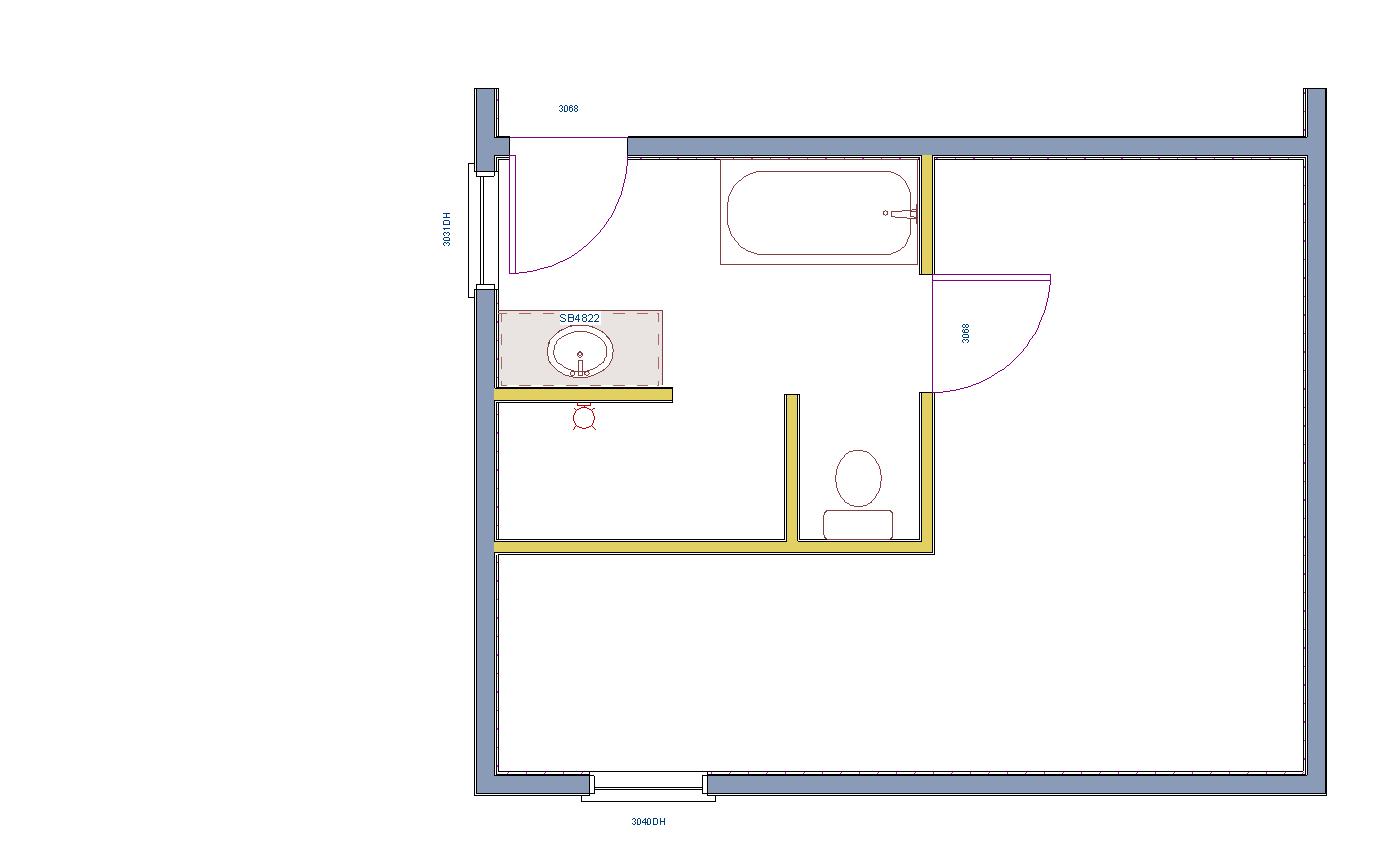
My wife takes baths all of the time, so getting rid of the tub is like heresy 
I talked to her about the double sinks and I think we may do a single sink with counter on the other side with a mirror above. A space to put her stuff while getting ready. I think its a good idea. The double sinks look good in a magazine, but really, who uses them. Also, I am looking at puttign the door into the closet from the bedroom. It does free up a lot of space in the bath, but now, what to do with it?
I talked to her about the double sinks and I think we may do a single sink with counter on the other side with a mirror above. A space to put her stuff while getting ready. I think its a good idea. The double sinks look good in a magazine, but really, who uses them. Also, I am looking at puttign the door into the closet from the bedroom. It does free up a lot of space in the bath, but now, what to do with it?
