New Home Build. Plan Review.

/ New Home Build. Plan Review. #101  
Your corner cabinet will go straight back so you will not be using the space in each back corner and the space in the front corners, in the small triangles, is really not usable. The cabinet above in the corner will have an access problem on the upper shelves because of the reach.

The cabinets above access issue is true for any corner cabinets up high. That's where you store the ugly dishes that you only get out when Aunt Milley comes to visit. ;)
 
/ New Home Build. Plan Review.
  • Thread Starter
#102  
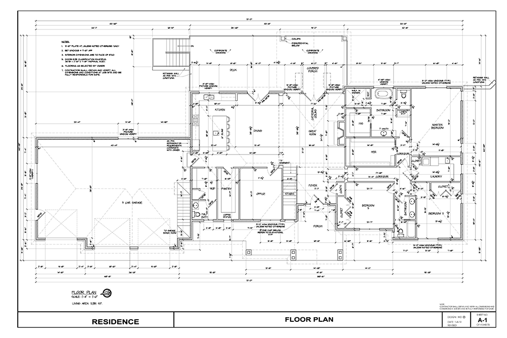
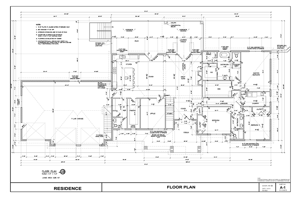
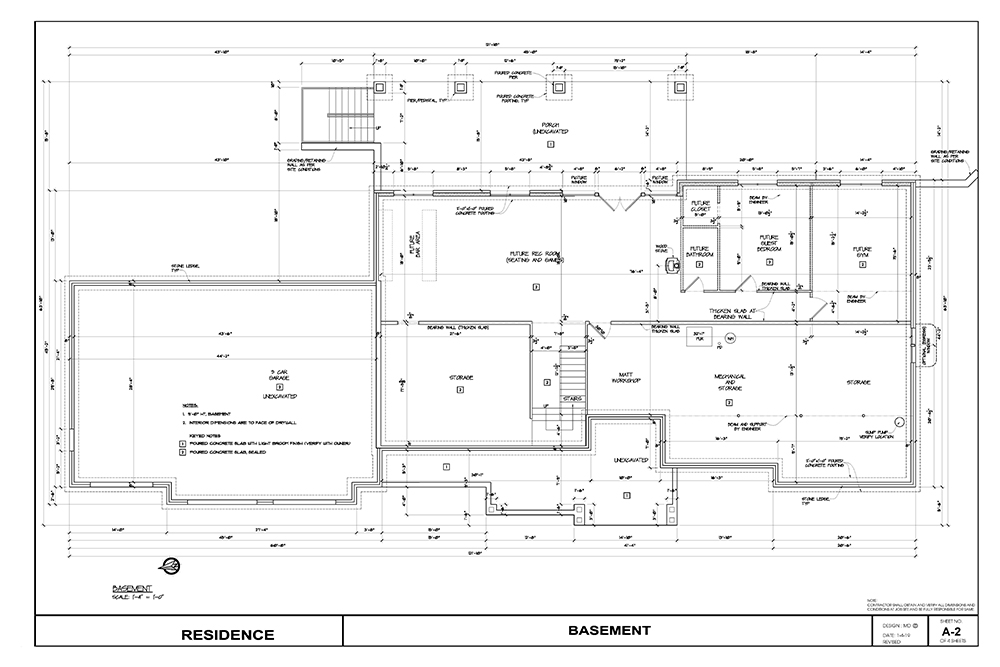
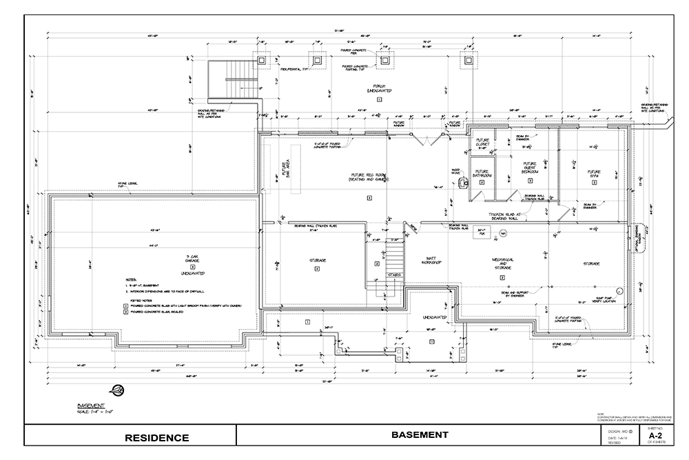
House plan is done (changed a few things), and filing for permits soon. Plan to break ground in June. We just had the driveway built (excavator finished yesterday), septic system is designed and permit issued, PPL plans are done, staked, and just waiting for good weather to put in. Well will be drilled asap weather permitting.

I MAY start a build thread, but not sure if I'm ambitious enough to keep up with it. :)

firstfloor.jpgsecondfloor.jpg
 

Attachments

  • A-1.jpg
    A-1.jpg
    227.1 KB · Views: 229
  • A-2.jpg
    A-2.jpg
    172.1 KB · Views: 209
Last edited:
/ New Home Build. Plan Review. #103  
House plan is done (changed a few things), and filing for permits soon. Plan to break ground in June. We just had the driveway built (excavator finished yesterday), septic system is designed and permit issued, PPL plans are done, staked, and just waiting for good weather to put in. Well will be drilled asap weather permitting.

I MAY start a build thread, but not sure if I'm ambitious enough to keep up with it. :)

View attachment 587659View attachment 587660

Just document everything and take lots of photos each time you are out there. Then post mass updates once in a while VS trying to keep up with it daily.

Sounds exciting. Good luck on the project. :thumbsup:
 
/ New Home Build. Plan Review. #105  
The plans look good. Call me strange, but I always like a separate closed door "poop room" in the master bath. Some things you don't want to share!
 
/ New Home Build. Plan Review.
  • Thread Starter
#107  
Updated with better sized files...I think :)
 
/ New Home Build. Plan Review. #109  
The plans look good. Call me strange, but I always like a separate closed door "poop room" in the master bath. Some things you don't want to share!

Concur, with Panasonic spec vent fans. :)

Sure looks like a nice plan to me with vast amounts of storage. It's hard for me to foresee issues with designs, but I'm not an architect.

Thanks for sharing.

Why June start? Just asking because if weather is a problem and if it takes 5-6 months to build, that would put you in winter??? Is it a contractor timing thing?
 
/ New Home Build. Plan Review.
  • Thread Starter
#110  
Concur, with Panasonic spec vent fans. :)

Sure looks like a nice plan to me with vast amounts of storage. It's hard for me to foresee issues with designs, but I'm not an architect.

Thanks for sharing.

Why June start? Just asking because if weather is a problem and if it takes 5-6 months to build, that would put you in winter??? Is it a contractor timing thing?

Yeah, our builder has another small house lined up for March. He plans to start ours in June.
 
/ New Home Build. Plan Review. #111  
Nice looking plans. We just downsized from a large home, 5.5 baths, 2,500 sq ft foot print, three stories.

The home had a walk out basement, two different sets of double doors for access.Two thirds of the basement was finished. House was awesome but imo the best part, the part of the basement that was left unfinished which I dubbed the "warehouse." About 1k sq foot that had double doors big enough that I could store my equipment in the winter. ATVs, ZT mower, pressure washer etc. Also had a bunch of built in wood shelves that were modular.

I leave the finishes to my wife, so my only comment is, make the doors that access your basement large enough to get equipment in for storage, if that is an option for you.
 
/ New Home Build. Plan Review. #112  
Nice looking plan. It has a great flow to it and a really smart layout. The laundry room is in a great location!! Looks like you really have a lot of storage too!!

On the garage, I can't read the dimensions very well, so I might be off here a little bit, but I'm wondering where you will put your workbench and tools in there? I've also found that having a sink in the garage is a must have thing. My parents have 9 foot garage doors on their house and it's a bit tight. I have a ten foot door on mine and I think it's a huge difference. Is there a reason to have the walk through door where it is on the side of the garage? Seems kind of awkward getting in and out of there with something parked inside the garage. How committed are you to having storage above your garage? To do this, you are going to pay a fortune to have it strong enough to put anything up there. With all that space in your basement, it's a very big expense to span the garage without using posts to be able to support the load that ends up just sitting up there. If it was me, I would get rid of those stairs and put the walk in door where they are, then truss the roof over the garage and blow in two feet of insulation over that area.

Kitchen looks nice, but I would bump the wall out into the garage behind the refrigerator so you have enough depth for the front to line up with the cabinets.

Master Shower looks plenty big enough. I would make sure that the faucet is on the left wall as you walk into it because you wont have to deal with cold water coming out of it when you first turn it on. Any other location will make it hard to turn it on and not get wet.
 
/ New Home Build. Plan Review.
  • Thread Starter
#113  
Nice looking plan. It has a great flow to it and a really smart layout. The laundry room is in a great location!! Looks like you really have a lot of storage too!!

On the garage, I can't read the dimensions very well, so I might be off here a little bit, but I'm wondering where you will put your workbench and tools in there? I've also found that having a sink in the garage is a must have thing. My parents have 9 foot garage doors on their house and it's a bit tight. I have a ten foot door on mine and I think it's a huge difference. Is there a reason to have the walk through door where it is on the side of the garage? Seems kind of awkward getting in and out of there with something parked inside the garage. How committed are you to having storage above your garage? To do this, you are going to pay a fortune to have it strong enough to put anything up there. With all that space in your basement, it's a very big expense to span the garage without using posts to be able to support the load that ends up just sitting up there. If it was me, I would get rid of those stairs and put the walk in door where they are, then truss the roof over the garage and blow in two feet of insulation over that area.

Kitchen looks nice, but I would bump the wall out into the garage behind the refrigerator so you have enough depth for the front to line up with the cabinets.

Master Shower looks plenty big enough. I would make sure that the faucet is on the left wall as you walk into it because you wont have to deal with cold water coming out of it when you first turn it on. Any other location will make it hard to turn it on and not get wet.

Thanks, Eddie.

As for the garage, we really want the storage up there as I'm giving up a 30x40 two story barn I currently have when we build. We're bursting now as is, and since the basement will eventually be partially finished, it won't be all storage, so the space above the garage is important to us. We're doing a 10' door in the middle, flanked by two 9'. The garage is 30'6" deep (28' deep at the one bay that is set in), so I should have a good amount of room toward the back for shelves/cabinets and a small workbench. The majority of my non-auto workspace will be in the basement since it's a fully exposed walkout (and I plan to have large doors in there as well).

The shower is the one space I'm hoping doesn't end up being too small. We also removed the window that was originally in place for the shower. I think we're going to miss the light it would provide, but windows in showers make me nervous.
 

Marketplace Items

Massey Ferguson 1745 Hesston series (A53317)
Massey Ferguson...
UNUSED 1RGC40 HIGH END MINI GOLF CART (A60432)
UNUSED 1RGC40 HIGH...
1998 INTERNATIONAL 9400 (A58214)
1998 INTERNATIONAL...
SKID STEER ATTACHMENT PICKER (A58214)
SKID STEER...
2023 GMC Sierra 1500 4x4 Crew Cab Pickup Truck (A56858)
2023 GMC Sierra...
2018 LARK UNITED MANUFACTURING S/A GUARD SHACK (A58214)
2018 LARK UNITED...
 
Top