New Grapple

/ New Grapple #31  
I would suggest that if not using a jig, that could be the problem.

Hand held fit up and closed eyes just ain't good enough.

Can anyone tell if the welds are robot welded or human welding.

I am thinking a robot welder can spot a bad fit up and cancel or request a jig alignment.
 
/ New Grapple #32  
This is the 1/8". Never had a single problem hooking up.

You shouldn't, that is a good match up, unlike others.

There is probably a lot more attachments that do not fit correctly.
 
/ New Grapple #33  
This is the 1/8". Never had a single problem hooking up.

I guessed at 1/8th, the point is that at some degree of accuracy you will find slight variations due to debris or manufacturing tolerances that make it too tight to easily hook up. A quick attach system should be robust enough that 1/8" variation one way or the other doesn't interfere with routine hook up. My own grapple is tight enough that sometimes when I pick it up, before putting the lever/locking pins down, that it will stick in a position that makes it necessary to jiggle the FEL or grapple to get it to seat properly. I'd prefer simple gravity to seat it each time and that the locking system be designed to work properly and safely even with whatever size gap is necessary to make mounting simple.

I don't want to overstate my case here, most FEL SS implements mount without hassle and I've never had anything fall off once mounted.
 
/ New Grapple
  • Thread Starter
#34  
The tolerances for a QA mount are not exactly like those of a camera lens. There should not be slop but a "skid steer" mount is not such a precisely made piece of equipment that it is shocking to find slight gaps. Here is the SAE standard for the skid steer QA mount. http://www.tractorbynet.com/forums/...91d1177387373-here-universal-attachment-mount

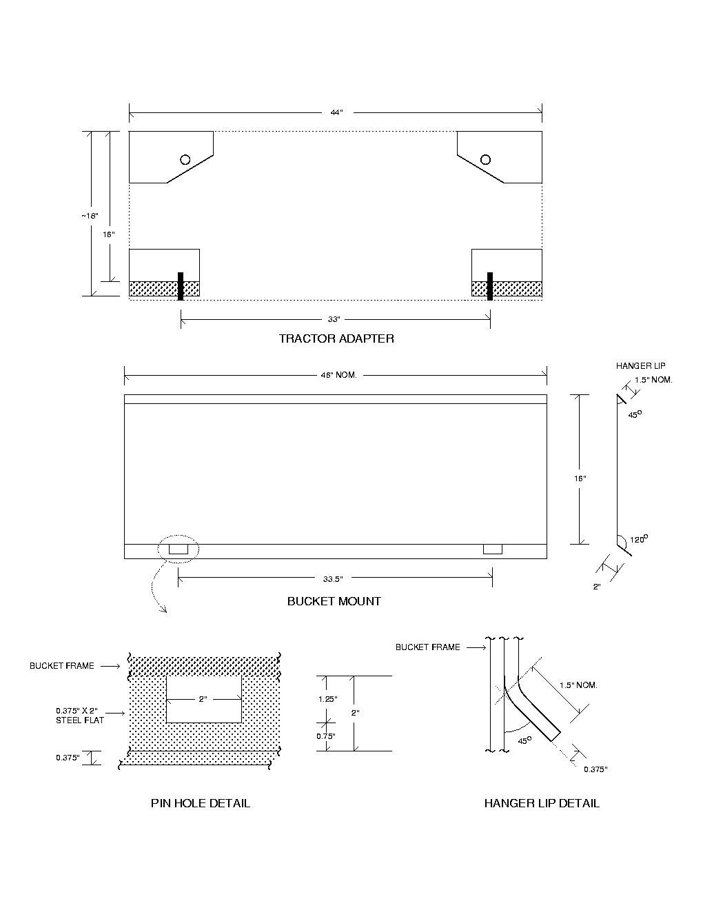
I am beginning to see the problem now. Check out the vertical dimensions for your drawing. It states 16 & 5/8ths to 16 & 9/16th. Now check out the drawing dimension given to me...it show 16 inches. No plus or minus. My grapple measures 16.5 inches. My QA tool carrier measures 16 inches. My KMW bucket that came with the loader measures 16.25 inches. So I am thinking there is a difference out there between skid steer and tractor spec. I know, they are suppose to all be the same.................but obviously there are two difference drawings with two different vertical dimensions floating around in cyber space.
hugs, Brandi
 

Attachments

  • SSQA.jpg
    SSQA.jpg
    87.7 KB · Views: 245
/ New Grapple #35  
It is inexcusable but if they can't make it to spec, it's better to be too big than too small. Too small and you get EVERY ONE returned. Too big- only some of them.
Too big : all customers suffer. Too small: the mfg suffers. Only one of those is guaranteed to be self correcting. Making to spec is easy enuf for those who view it as a responsibility to do so.
larry
 
/ New Grapple
  • Thread Starter
#36  
Just heard my shim plates will be made in 10 days. Which is fine with me as we got 4.5 inches of rain last night.:D
hugs, Brandi
 
/ New Grapple #37  
I am beginning to see the problem now. Check out the vertical dimensions for your drawing. It states 16 & 5/8ths to 16 & 9/16th. Now check out the drawing dimension given to me...it show 16 inches. No plus or minus. My grapple measures 16.5 inches. My QA tool carrier measures 16 inches. My KMW bucket that came with the loader measures 16.25 inches. So I am thinking there is a difference out there between skid steer and tractor spec. I know, they are suppose to all be the same.................but obviously there are two difference drawings with two different vertical dimensions floating around in cyber space.
hugs, Brandi
The drawing given you is wrong by virtue of being simplistic. Much better referencing is necessary to make parts that will fit.
larry
 
/ New Grapple #39  
I am beginning to see the problem now. Check out the vertical dimensions for your drawing. It states 16 & 5/8ths to 16 & 9/16th. Now check out the drawing dimension given to me...it show 16 inches. No plus or minus. My grapple measures 16.5 inches. My QA tool carrier measures 16 inches. My KMW bucket that came with the loader measures 16.25 inches. So I am thinking there is a difference out there between skid steer and tractor spec. I know, they are suppose to all be the same.................but obviously there are two difference drawings with two different vertical dimensions floating around in cyber space.
hugs, Brandi

Brandi look at the drawing again. The 16 9/16"-16 5/8" is the measurement to the edge of the hole at the bottom closest to the tractor/skid steer. The dimension to the left, 15 7/8" is the one you should be looking at. Then If manufacturers build at 16" they allowed an 1/8" for clearance. They may have built at 16 5/8" and that's why you are 1/2" too much gap.
 
/ New Grapple #40  
 

Marketplace Items

2007 CHEVROLET 3500 DUALLY 4X4 DIESEL TRUCK (A59575)
2007 CHEVROLET...
2014 Eager Beaver 50SL/3 53ft 60 Ton Tri-Axle RGN Low Boy Trailer (A59230)
2014 Eager Beaver...
2024 CATERPILLAR 305 CR EXCAVATOR (A52709)
2024 CATERPILLAR...
2015 Crane Carrier Co. Resue Garbage Truck (A59230)
2015 Crane Carrier...
MANIFOLD TRAILER (A58214)
MANIFOLD TRAILER...
2016 FORD TRANSIT T250 CARGO VAN (A59575)
2016 FORD TRANSIT...
 
Top