Making a SSQA Mounting Plate

/ Making a SSQA Mounting Plate #1  

lzicc

Platinum Member
Joined
Jul 20, 2009
Messages
723
Location
Pittsburgh, Pa
Tractor
Kubota B2650
How hard would it be to make a SSQA mounting plate? Is there any online plans on the dimensions? Is it fairly simple to make? How thick of metal should I use?
 
/ Making a SSQA Mounting Plate #2  
Easy to build. Walk through a decent sized (skid steer) dealer or rental yard (that has a bunch of ssqa attachments) with your camera and notice the slight differences. All you need to watch (besides the obvious dimensions) is the angle of the top "hook" and IIRC it's 45 deg. and the bottom angle at the pin surface. I'll always use stout (3/8") material in these areas, but fastening it to the particular attachment plate, I'll consider the strength of the attachment itself. Generally a store bought "plate" is built on a 1/4" sheet, this may not be necessary if, say you built a heavy frame for a set of forks vs a hyd. auger. If your avatar tractor has ssqa, you can build off of it, starting at the top. Hang it on there and work your way down. There is a second set of pin holes in the bottom that I think is some old holdover from an earlier machine. I think it's the set of pin slots that are the widest. What is on your machine should be all you need to copy to make it compatible with all recent year machines.
 
/ Making a SSQA Mounting Plate
  • Thread Starter
#3  
I did take my bucket off today and looked at it. It probably doesn't even have to be sheet style metal. I want to build a set of forks for mine, so it doesn't have to be too heavy. I'm thinking I could use angle iron to make the frame of the ssqa plate and work it from there. I priced out some 3/8" sheet steel and it's not cheap.
 
/ Making a SSQA Mounting Plate #4  
Fork's ar soooo handy. If you happen to have a set of loose forks around, it's a fun project. If you don't, I'd look around for auctions, CL. etc. They seem to hold a used value @ about $300 & up.
 
/ Making a SSQA Mounting Plate #5  
I looked on ebay and found very well made attachment plates in the $120 price range, including shipping. Seemed cheap to me.

I took the bucket off my tractor and cut some precision wood strips that fit the ssqa recess in the bucket just right. To this i glued and screwed a piece of plywood. The result is a jig that is the same dimensions of the tractor mounted SSQA adapter.

If i clamp pieces of 3/8 x 2" flat meterial to the jig and then weld the steel to my attachment, when the jig is removed the attachment will fit the tractor SSQA. The wood jig ensures the steel is properly positioned for welding.

Sorry, no photo
 
/ Making a SSQA Mounting Plate #6  
How hard would it be to make a SSQA mounting plate? Is there any online plans on the dimensions? Is it fairly simple to make? How thick of metal should I use?

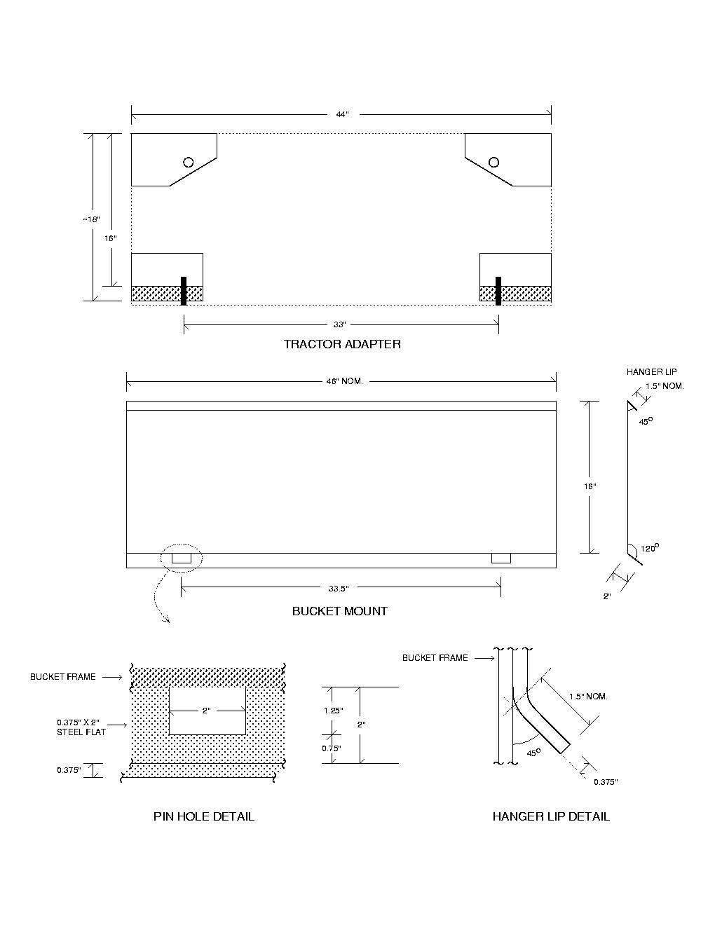
Here is a drawing with dimentions.
SSQA specs.jpg

Here is a lightweight frame with some 2x2x48" long Pin style "block forks" that I found on eBay.
P3250009.JPG P8080001.JPG P8080003.JPG
 
/ Making a SSQA Mounting Plate #9  
This is one of those items that, unless you have the steel sitting around or can get it for free, it will cost more to build than to buy. They are commodity items. ebay has tons of decent sellers, and your local CL probably does too.
 
/ Making a SSQA Mounting Plate #10  
I bought that $129 SSQA plate off eBay and used in to build a bale squeeze that attaches to the FEL arms on my Mahindra 5525.

Bale squeeze-SSQA.JPG

Wouldn't even think of fabricating that plate myself when they are so inexpensive readymade.
 
/ Making a SSQA Mounting Plate
  • Thread Starter
#13  
That's a good point that I though about. I would have to buy the steel which it would not be worth making myself. Thanks for those links. The RRK free shipping is good. Some of these places charge allot for shipping.
 
/ Making a SSQA Mounting Plate
  • Thread Starter
#15  
It looks like S&H is free on this site also. What would be a good thickness to get for pallet forks? Should I get the full plate or will the partial plate work?

For the price these guys charge for their mounting plates, I would jot bother buying the steel and making my own.

Mount Plates - Tractor Attachments
 
/ Making a SSQA Mounting Plate
  • Thread Starter
#17  
Thanks MWB. I do have some 2" x 2", 1/4". I like the way you made your forks. I just need to find a pair of forks now.
 
/ Making a SSQA Mounting Plate #18  
MWB-- I just bought a mounting plate from Titan and a pair of used forks. I had plans to make a fork lift just like yours, but the face of the plate is about one inch too deep. I can't weld a 1/2" bar to project above the plate and a 1/2" bar to project below the plate for the 16" depth of the forks. I had planned to use 1/2" X 4" bar stock where you have spec'd 1/2" x 2 1/2" , and run a continuous weld along the top and bottom. In order to accommodate the 1/2" lip at the back of the forks' mounting lips (too many lips here) I will need to space these bars 1/2"- 9/16" out from the mounting plate. Doubling the thickness of the bars seems like overkill, and using bolts just assures that they will interfere with the sliding forks or the QA function. Any suggestions?
 
/ Making a SSQA Mounting Plate #19  
MWB-- I just bought a mounting plate from Titan and a pair of used forks. I had plans to make a fork lift just like yours, but the face of the plate is about one inch too deep. I can't weld a 1/2" bar to project above the plate and a 1/2" bar to project below the plate for the 16" depth of the forks. I had planned to use 1/2" X 4" bar stock where you have spec'd 1/2" x 2 1/2" , and run a continuous weld along the top and bottom. In order to accommodate the 1/2" lip at the back of the forks' mounting lips (too many lips here) I will need to space these bars 1/2"- 9/16" out from the mounting plate. Doubling the thickness of the bars seems like overkill, and using bolts just assures that they will interfere with the sliding forks or the QA function. Any suggestions?

That is a little confusing :) but if you use my square tube frame and the flat stock to hang the forks then you can put your mounting plates anywhere on the back. You will need the square tube for torsional stiffness anyway. You won't get a good job just welding the adapter plate to the flat stock (with spacers, etc).
 
/ Making a SSQA Mounting Plate #20  
I hadn't thought about torsional stiffness, but I see your point. I took care of it by welding 1 x 2 rectangular tubing to the face of the plate, and adding the flat stock to it. I figured having a ready-made mounting plate would be faster and cheaper than building one like yours, but not necessarily. I'll be using it on my 742B Bobcat to move half ton pallets of pellets, so there won't be much stress on it.
 

Marketplace Items

2006 HONDA ACCORD (A65057)
2006 HONDA ACCORD...
2019 Cadillac XTS Stretch Limousine for Sale, S and S Coachbuilders, 70IN, 7866 Miles (A63689)
2019 Cadillac XTS...
32ft T/A Flatbed Tag Trailer (A66736)
32ft T/A Flatbed...
21ft. T/A Homemade Parade Float Trailer (A66736)
21ft. T/A Homemade...
2013 VOLVO A40F OFF ROAD DUMP TRUCK (A65053)
2013 VOLVO A40F...
2012 CHANDLER TRI AXLE SPD-18 WATER HEATING TRAILER (A67714)
2012 CHANDLER TRI...
 
Top