sspenst
Bronze Member
- Joined
- Mar 21, 2014
- Messages
- 93
- Location
- Dawson Creek
- Tractor
- 2019 Mahindra 2638 HST CAB w/Loader, 2 sets Rear Aux Hydraulics,Mid PTO, Cruise, Trailer Socket
Not sure where to start but here goes.... lol
i finally felt sorry and decided that i better help my uncle with his 2007 Mahindra 3215 gear tractor. he has had a few mechanical issues with it. Most likely from operator abuse IMO!
Hours on his 3215 are unknown.. he bought it brand new in sept 2007. hour meter quit at 260 ish hours i guess.
his first issue years ago was his Front 4wd shaft/coupler wore out.took it to the local (NH/Kubota) Dealer change it..(just under $2k cdn if i remember right) read about issues with it on here somewhere....
second time was last year, he bought a clutch for it. (was slipping in high range apparently)and decided to take it to the local dealer again (NH/Kubota) to do the work as he couldn't be bothered to do the work him self.
he also had to replace one rear AG tire as it was in bad shape and leaked fluid everywhere(calcium), ended up buying 2. and the shop had trouble lining things up apparently on reassembly.. (around $5k cdn i think
)
so now the latest issue is his rear differential....
he was driving out to his pasture to collect firewood when it went crunch crunch.... and that's where he left it sit.. (too much other work/chores to do anything about it i guess...)
(just got his garden in barely) so its been sitting in his pasture since then.
so this past weekend i told him i would come help tear it apart and find out what was wrong...(seen's how winter is fast approaching...)
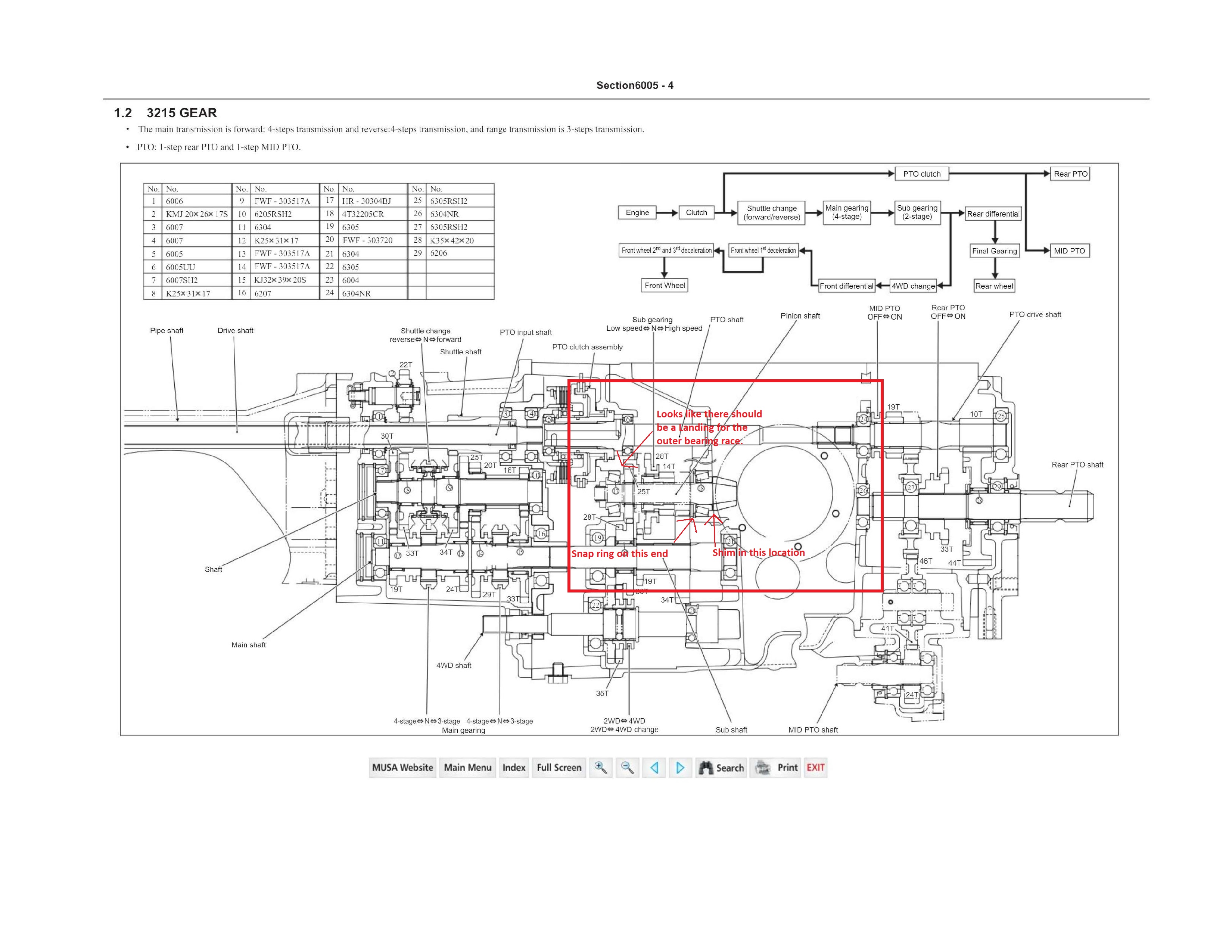
started with left side axle case, and ended up removing everything from the transmission back! pinion bearing seized and broke out the bearing seat and snap ring grove in the cast aluminum housing and chipped some pinion gears.....
and yes there was or seemed to be lots of oil in there, i pulled dip stick and was at full mark. before we undid any bolts........we drained a full 5 gals of hydraulic fluid out..
best we can figure for parts and new filter oil etc... us doing work probably another $4k cdn.....dealer says 2 weeks to order in plus freight to him.
i don't have anything bad to say about mahindra. i just traded my 3016 in on a 2638 cab
. hindsight i should have kept the spare filters to give to my uncle....oops lol
I'm 98% sure it was OP miss use.. but have been wrong b4.
now i don't know what changes they made from the 15 series to the 16 series. look identical. i know my front axle on my 3016 is different along with the loader mounting.. the axle housings on the 3215 are cast iron i think but everything else is aluminum... did they upgrade the diff and trans housings to iron??
ill attach housing pic, might not be able to see clearly. was dark by the time we cleaned up tools etc....
i finally felt sorry and decided that i better help my uncle with his 2007 Mahindra 3215 gear tractor. he has had a few mechanical issues with it. Most likely from operator abuse IMO!
Hours on his 3215 are unknown.. he bought it brand new in sept 2007. hour meter quit at 260 ish hours i guess.
his first issue years ago was his Front 4wd shaft/coupler wore out.took it to the local (NH/Kubota) Dealer change it..(just under $2k cdn if i remember right) read about issues with it on here somewhere....
second time was last year, he bought a clutch for it. (was slipping in high range apparently)and decided to take it to the local dealer again (NH/Kubota) to do the work as he couldn't be bothered to do the work him self.
he also had to replace one rear AG tire as it was in bad shape and leaked fluid everywhere(calcium), ended up buying 2. and the shop had trouble lining things up apparently on reassembly.. (around $5k cdn i think
so now the latest issue is his rear differential....
he was driving out to his pasture to collect firewood when it went crunch crunch.... and that's where he left it sit.. (too much other work/chores to do anything about it i guess...)
(just got his garden in barely) so its been sitting in his pasture since then.
so this past weekend i told him i would come help tear it apart and find out what was wrong...(seen's how winter is fast approaching...)
started with left side axle case, and ended up removing everything from the transmission back! pinion bearing seized and broke out the bearing seat and snap ring grove in the cast aluminum housing and chipped some pinion gears.....
and yes there was or seemed to be lots of oil in there, i pulled dip stick and was at full mark. before we undid any bolts........we drained a full 5 gals of hydraulic fluid out..
best we can figure for parts and new filter oil etc... us doing work probably another $4k cdn.....dealer says 2 weeks to order in plus freight to him.
i don't have anything bad to say about mahindra. i just traded my 3016 in on a 2638 cab
I'm 98% sure it was OP miss use.. but have been wrong b4.
now i don't know what changes they made from the 15 series to the 16 series. look identical. i know my front axle on my 3016 is different along with the loader mounting.. the axle housings on the 3215 are cast iron i think but everything else is aluminum... did they upgrade the diff and trans housings to iron??
ill attach housing pic, might not be able to see clearly. was dark by the time we cleaned up tools etc....









