why this is not working ??

/ why this is not working ?? #1  

Rockbadchild

Super Member
Joined
Apr 29, 2021
Messages
5,066
Location
northern Ontario Canada
Tractor
2076E Massey Ferguson
I bought a rootrake grappler, my tractor is really basic 2706e and I don't have the rear remote. I was given a wood splitter valve 24 GPM flow through so I took my hydraulic pump pressure and send it to my new single action valve took the out and send it back in my original tractor function valve should this work ? I tried it and everything work but it didn't hold the pressure as soon as I would let go the lever the grappler would close. I was told the valve is busted... so I order a new one, flow through single directional valve. I even tested it with air, it goes right through pull on the lever the air goes out one port, pull and the air comes out the other just how it should. Hook it up the same way as before, pressure in the IN the OUT of the single action valve back in my tractor dual valve pressure and the out is un-touch. Started the tractor everything was normal, pulled the stick to lift the tractor loader (tractor original valve) and the grappler open while I was lifting the tractor boom... the single action valve send pressure in the line without pulling or pushing on the lever why ???

1660992135305.png
 
/ why this is not working ?? #2  
Did you use a "power beyond" adapter fitting in the control valve for the FEL? If you just hooked up the grapple hose to the control valve it won't work (ask me how I know). You need a power beyond adapter fitting in the main control valve. Has something to do with the regulated flow to that hose and cuts off flow elsewhere on your internal spools.

Also check to see if your hoses aren't reversed on the valve for the grapple valve. Tough to tell from the pic, but looks like they might be.
 
Last edited:
/ why this is not working ?? #3  
Your new valve is not designed to have any real pressure on the out port. You can not feed another valve from that one.

The electric 3rd function valves you see plumbed straight to another valve is designed to handle back pressure.

You need a valve with power beyond for your grapple. Then plumb it after you loader valve.
 
/ why this is not working ??
  • Thread Starter
#4  
ha I see, ok thanks ... No I haven't used a power beyond fitting .... I will check that out.
 
/ why this is not working ?? #5  
The original issue with the log splitter valve almost made me think you were using one with 'auto return' that would reset the log splitter when you let go of the handle, but i think that's just something the grim irony part of my brain wants to be true because it would be funny.. not that it's actually true. :ROFLMAO:

I'm under the impression that just because something doesn't have a power beyond port doesn't necessarily mean it can't have pressure on its outlet, but i also don't know what other way to consistently tell. For example all those modular 'stackable' valve sets clearly can have pressure on their outlets.. there may be some other trait or term to identify that feature. But anything with a power beyond port will definitely work.

Conceivably you might be able to just reroute your plumbing so that the loader valve is first and the grapple valve is after. That may allow the hardware you already have to work. Depends on the loader valve. It may be able to deal with pressure on its outlet/'tank' port, or it might already have a power beyond port that's currently plugged and just needs the proper adapter inserted.
 
/ why this is not working ??
  • Thread Starter
#6  
Conceivably you might be able to just reroute your plumbing so that the loader valve is first and the grapple valve is after. That may allow the hardware you already have to work. Depends on the loader valve. It may be able to deal with pressure on its outlet/'tank' port, or it might already have a power beyond port that's currently plugged and just needs the proper adapter inserted.
yes I have consider trying it that way but I have two out on my loader valve T2 and T3, so I have to find out from the dealer what that's all about ...
 
/ why this is not working ?? #7  

why this is not working ??​


The wood splitter valve is a pressure detent valve. When the return stroke is complete the pressure caused the valve to go into open mode
 
/ why this is not working ?? #8  
I believe your loader already has power beyond. Hard to tell from the picture but it looks like you have SEVEN hoses attached to the loader.

Take off the 4 going to your loader and there are 3 left connecting to the tractor.
1 is pressure in
2 is power beyond out going to feed the 3PH
3 is the tank return

Thats how most modern tractors are set up. So as far as swapping the valves and making loader first aint gonna work. Because ONLY the LAST valve in the system can be without PB.....and in your case thats the 3PH.

The danger of using a NON power beyond valve before the loader as you have it now.....is whatever pressure is required to do the loader work is seen as backpressure on the tank port of the 3rd valve. The issue that causes is most valves arent rated for that, as the tank passage inside the valve is some thin casting....and can crack the body of the new valve, or blow out seals where the spools protrude for the lever to connect. But none of that should cause the grapple to move while ALSO moving the loader unless the casting is already cracked.

But more than likely the problem is you have gotten a true open center valve....rather than the technically correct term.....a tandem center valve.

A true open center not only connects P to T port (as you found out by pressure testing) but also connects the work ports back to tank. So it dont allow load holding whereas a tandem center valve blocks the work ports.

Since you ordered a new valve....do you have paperwork, model number, or schematic of it you could post a pic and I could tell you for sure? Cause if its true open center or even a motor spool in the new valve.....and not having PB.....that combination causing backpressure will indeed cause pressure on the work ports of your 3rd function valve. And pressure on those ports will indeed open your grapple.
 
/ why this is not working ??
  • Thread Starter
#9  
I believe your loader already has power beyond. Hard to tell from the picture but it looks like you have SEVEN hoses attached to the loader.

Take off the 4 going to your loader and there are 3 left connecting to the tractor.
1 is pressure in
2 is power beyond out going to feed the 3PH
3 is the tank return

Thats how most modern tractors are set up. So as far as swapping the valves and making loader first aint gonna work. Because ONLY the LAST valve in the system can be without PB.....and in your case thats the 3PH.

The danger of using a NON power beyond valve before the loader as you have it now.....is whatever pressure is required to do the loader work is seen as backpressure on the tank port of the 3rd valve. The issue that causes is most valves arent rated for that, as the tank passage inside the valve is some thin casting....and can crack the body of the new valve, or blow out seals where the spools protrude for the lever to connect. But none of that should cause the grapple to move while ALSO moving the loader unless the casting is already cracked.

But more than likely the problem is you have gotten a true open center valve....rather than the technically correct term.....a tandem center valve.

A true open center not only connects P to T port (as you found out by pressure testing) but also connects the work ports back to tank. So it dont allow load holding whereas a tandem center valve blocks the work ports.

Since you ordered a new valve....do you have paperwork, model number, or schematic of it you could post a pic and I could tell you for sure? Cause if its true open center or even a motor spool in the new valve.....and not having PB.....that combination causing backpressure will indeed cause pressure on the work ports of your 3rd function valve. And pressure on those ports will indeed open your grapple.

yes you are right I have 3 hoses P2/P3 then T2B and T3A ... that makes sense ... yes I have the paper work but wont be able to get my hand on it for week or so I know I dont not have PB on my new valve and what you are saying makes perfect sense it must be it... so my power beyond is already used ? I can't used it since its already used ? my only options is a third function kit ? or changing to a three spool directional valve with a power beyond for the 3 point hitch ?
 
Last edited:
/ why this is not working ?? #10  
yes you are right I have 3 hoses P2/P3 then T2B and T3A ... that makes sense ... yes I have the paper work but wont be able to get my hand on it for week or so I know I dont not have PB on my new valve and what you are saying makes perfect sense it must be it... so my power beyond is already used ? I can't used it since its already used ? my only options is a third function kit ? or changing to a three spool directional valve with a power beyond for the 3 point hitch ?
Actually you have several options.

What power beyond is.....is also called "high pressure carry-over".....so perhaps that is a more accurate description.

Valves on an open center tractor such as yours and most are all in series. So there is only ever ONE power beyond.

So when designing a system with multiple valves.....all the valves have 3 hoses. Pressure in, Power beyond (that goes to the pressure in of the next valve in the series), and a tank return.

The tank return ONLY flows oil when using the valve. So like when raising or lowering the loader.....the oil that is expelled out of the cylinders other port.....returns back through the tank passage and returns to the transmission sump of the tractor rather than being forced through all the downstream valves....

99.9% of all manual valves that I have seen are NOT rated for pressure on the tank port....but 99% of all electric valves I have see ARE rated for pressure.

Since you CANNOT make the 3rd function valve the LAST valve in the system.....because the last valve is the 3PH and usually internal to the tractor and internal passages.....your 3rd function IF you insist on a manual valve MUST be a power beyond capable valve with appropriate PB cartridge/plug.

So basically what you have will NOT work. So starting over.....here are your options:
1. Yes you can get a single 3-spool valve that replaces your existing loader valve and has the 3rd function built in. This is probably the most expensive option
2. You can get a single spool valve as you have already done.....only this time, get one that has power beyond and is tandem center
3. You can get an electric 3rd function valve.....as those dont normally need a PB as mentioned. But you have to supply it 12v through a button or rocker switch added to your joystick
4. You can go the diverter route. A diverter doesnt change any of the 3 hoses connecting your loader valve how it was originally installed. Rather you pick either curl/dump function or the lift/lower function and tie into them. Still need the 12v and a button. But it uses your existing loader valve to control the grapple by diverting one of the functions whenever button is pushed.

And I guess a 5th option would be long hoses going from rear remotes IF your tractor has rear remotes and IF the control for those remotes is ergonomically handy and in close proximity to the loader joystick
 
/ why this is not working ?? #11  
What power beyond is.....is also called "high pressure carry-over".....so perhaps that is a more accurate description.
I ain't no Hydraulics mavin, but the latter expression sounds more - - how shall I say it - - vocational, it sounds more like what one might expect to hear from a vocational expert e.g. a tradesman or an engineer.
 
/ why this is not working ??
  • Thread Starter
#12  
Actually you have several options.

What power beyond is.....is also called "high pressure carry-over".....so perhaps that is a more accurate description.

Valves on an open center tractor such as yours and most are all in series. So there is only ever ONE power beyond.

So when designing a system with multiple valves.....all the valves have 3 hoses. Pressure in, Power beyond (that goes to the pressure in of the next valve in the series), and a tank return.

The tank return ONLY flows oil when using the valve. So like when raising or lowering the loader.....the oil that is expelled out of the cylinders other port.....returns back through the tank passage and returns to the transmission sump of the tractor rather than being forced through all the downstream valves....

99.9% of all manual valves that I have seen are NOT rated for pressure on the tank port....but 99% of all electric valves I have see ARE rated for pressure.

Since you CANNOT make the 3rd function valve the LAST valve in the system.....because the last valve is the 3PH and usually internal to the tractor and internal passages.....your 3rd function IF you insist on a manual valve MUST be a power beyond capable valve with appropriate PB cartridge/plug.

So basically what you have will NOT work. So starting over.....here are your options:
1. Yes you can get a single 3-spool valve that replaces your existing loader valve and has the 3rd function built in. This is probably the most expensive option
2. You can get a single spool valve as you have already done.....only this time, get one that has power beyond and is tandem center
3. You can get an electric 3rd function valve.....as those dont normally need a PB as mentioned. But you have to supply it 12v through a button or rocker switch added to your joystick
4. You can go the diverter route. A diverter doesnt change any of the 3 hoses connecting your loader valve how it was originally installed. Rather you pick either curl/dump function or the lift/lower function and tie into them. Still need the 12v and a button. But it uses your existing loader valve to control the grapple by diverting one of the functions whenever button is pushed.

And I guess a 5th option would be long hoses going from rear remotes IF your tractor has rear remotes and IF the control for those remotes is ergonomically handy and in close proximity to the loader joystick
lets say I go with option 2 how would I hook that up ? I take the power beyond off my tractor valve use that as my IN for the new valve take the out and T off my tank return and feed the 3PH with the power beyond of the new valve ?
 
/ why this is not working ?? #13  
The new valve will also have three connection ports not counting the ones going to the cylinder (work ports) just like the loader valve.

It will have a p, pb, and t.

If you want the loader valve first.....hook it back up exactly how it was.

Now the ONLY hose to remove is the PB hose. That is currently feeding the 3ph....wherever that may be on your particular machine.

Go from the PB of the loader valve to your NEW valves P port. Now you have supply....

Go from the PB of the new valve to the 3ph. Wherever the old PB off the loader went.

Now you have a complete system BUT.....you still need to add a tank line for the new valve so when using the grapple the oil coming back from the cylinder can return to tank. So from the T port of the new valve....return to tank somewhere.

The Tank lines are the ONLY lines you can TEE on an open center hydraulic system. So follow the hose coming off of the T port of the loader valve. Remove a fitting wherever convenient and replace with a tee.


You need ALL THREE houses hooked up to a manual valve just like the loader.

Let me know if that makes sense
 
/ why this is not working ??
  • Thread Starter
#14  
The new valve will also have three connection ports not counting the ones going to the cylinder (work ports) just like the loader valve.

It will have a p, pb, and t.

If you want the loader valve first.....hook it back up exactly how it was.

Now the ONLY hose to remove is the PB hose. That is currently feeding the 3ph....wherever that may be on your particular machine.

Go from the PB of the loader valve to your NEW valves P port. Now you have supply....

Go from the PB of the new valve to the 3ph. Wherever the old PB off the loader went.

Now you have a complete system BUT.....you still need to add a tank line for the new valve so when using the grapple the oil coming back from the cylinder can return to tank. So from the T port of the new valve....return to tank somewhere.

The Tank lines are the ONLY lines you can TEE on an open center hydraulic system. So follow the hose coming off of the T port of the loader valve. Remove a fitting wherever convenient and replace with a tee.


You need ALL THREE houses hooked up to a manual valve just like the loader.

Let me know if that makes sense
ok yes that's how I saw it as well, just did a poor job explaining it ... yes it make sense...now why do I need a tandem center ? that keep the pressure in the grappler line when I would release the function ?
 
/ why this is not working ?? #15  
ok yes that's how I saw it as well, just did a poor job explaining it ... yes it make sense...now why do I need a tandem center ? that keep the pressure in the grappler line when I would release the function ?
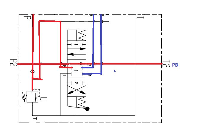
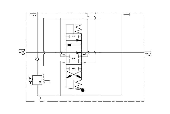
This shows the actual valve diagram you should see when ordering a valve....and explains the difference between open center and tandem center valves. Intro to Directional Control Valves.

A and B are the work ports. And when the valve is centered (not being used), if you want the cylinders to stay where they are, you need A and B ports blocked off....IE: tandem center. A true open center opens them ports to tank and the cylinders are not held by the valve.

IF you look at the diagram/manual for the valve you sent me in a PM, It does show it being tandem center and power beyond capable. The diagram for the single spool valve is on the first page. and further down the page they show the PB adapter you need to get as well. It will thread into one of the tank ports.

So on the diagram.....Which I know is hard to follow if you dont understand hydraulic schematics.....shows pressure coming in and going straight out the T2 port which is PB. ANd the A and B ports are blocked off in neutral which is what you want. When the valve shifts either direction....PB flow is cut off.....and P goes to either work port A or B.....and the work port that pressure is not going to is free to return to tank through T port and NOT the T port which would be PB if the plug is installed


So looking at that diagram.....This is what it looks like
valve.PNG

And in neutral.....Red is pressure passing through to PB. Notice the A and B ports are blocked so the oil in the cylinders cannot excape
valve neutral.png

When shifted (you have to visualize square 1 or 2 shifting into place of cube 0)....the flow would look like:
Notice how work port A is now receiving pressure to move the cylinder, while port B is open to return the oil discharged from the cylinder back to tank, and PB flow is cut off.

valve.PNG

So when looking for a valve.....first and foremost you want one that is PB adaptable.
Second is you want to see that A and B port is isolated when in neutral like this:
valve2.png

And NOT one that is open to allow A and B to return to tank like this, which I suspect you may have.
valve3.png

The true open center valves are commonly used for hydraulic motors. Dont want to muddy the waters of your understanding of what you need, but when a valve is opened and a hydraulic motor is spinning.....if you had a tandem center valve....as soon as you let the valve return to neutral, you block off the flow of oil at the work ports A and B. This means that whatever the motor was spinning....has to stop IMMEDIATLY. Some things just cant do that.....think about the inertia of a rotary cutter on the front of a skidloader for example. The inertia of the cutter still trying to spin could cause a huge pressure spike and blow hoses. So true open center which is sometimes called "motor spools" allow it to spin down slowly. Thats not the only way to make that happen, and not the only use for a true open center valve....but just one example to help you inderstand.

I honestly dont know what logsplitter valves are. Whether they are tandem or open center doesnt really matter because they arent designed to hold a load like a loader.....and being a horizontal cylinder.....gravity isnt making it move on its own when in neutral.

Id still like to see a diagram or know just what valve you purchased initially to appease my curiosity. But at the end of the day.....get a PB capable tandem center valve (even if they dont use the term "tandem" just look at the diagram). ANd plumb it as I mentioned and you should be all set
 
/ why this is not working ??
  • Thread Starter
#16  
This shows the actual valve diagram you should see when ordering a valve....and explains the difference between open center and tandem center valves. Intro to Directional Control Valves.

A and B are the work ports. And when the valve is centered (not being used), if you want the cylinders to stay where they are, you need A and B ports blocked off....IE: tandem center. A true open center opens them ports to tank and the cylinders are not held by the valve.

IF you look at the diagram/manual for the valve you sent me in a PM, It does show it being tandem center and power beyond capable. The diagram for the single spool valve is on the first page. and further down the page they show the PB adapter you need to get as well. It will thread into one of the tank ports.

So on the diagram.....Which I know is hard to follow if you dont understand hydraulic schematics.....shows pressure coming in and going straight out the T2 port which is PB. ANd the A and B ports are blocked off in neutral which is what you want. When the valve shifts either direction....PB flow is cut off.....and P goes to either work port A or B.....and the work port that pressure is not going to is free to return to tank through T port and NOT the T port which would be PB if the plug is installed


So looking at that diagram.....This is what it looks like
View attachment 759411
And in neutral.....Red is pressure passing through to PB. Notice the A and B ports are blocked so the oil in the cylinders cannot excape
View attachment 759412
When shifted (you have to visualize square 1 or 2 shifting into place of cube 0)....the flow would look like:
Notice how work port A is now receiving pressure to move the cylinder, while port B is open to return the oil discharged from the cylinder back to tank, and PB flow is cut off.

View attachment 759416
So when looking for a valve.....first and foremost you want one that is PB adaptable.
Second is you want to see that A and B port is isolated when in neutral like this:
View attachment 759417
And NOT one that is open to allow A and B to return to tank like this, which I suspect you may have.
View attachment 759418
The true open center valves are commonly used for hydraulic motors. Dont want to muddy the waters of your understanding of what you need, but when a valve is opened and a hydraulic motor is spinning.....if you had a tandem center valve....as soon as you let the valve return to neutral, you block off the flow of oil at the work ports A and B. This means that whatever the motor was spinning....has to stop IMMEDIATLY. Some things just cant do that.....think about the inertia of a rotary cutter on the front of a skidloader for example. The inertia of the cutter still trying to spin could cause a huge pressure spike and blow hoses. So true open center which is sometimes called "motor spools" allow it to spin down slowly. Thats not the only way to make that happen, and not the only use for a true open center valve....but just one example to help you inderstand.

I honestly dont know what logsplitter valves are. Whether they are tandem or open center doesnt really matter because they arent designed to hold a load like a loader.....and being a horizontal cylinder.....gravity isnt making it move on its own when in neutral.

Id still like to see a diagram or know just what valve you purchased initially to appease my curiosity. But at the end of the day.....get a PB capable tandem center valve (even if they dont use the term "tandem" just look at the diagram). ANd plumb it as I mentioned and you should be all set
really good explanation thank a million ...

that's the one I previously ordered,

 
/ why this is not working ?? #17  
really good explanation thank a million ...

that's the one I previously ordered,

Of course they don't give a hydraulic diagram of the valve. So I can only speculate at this time that either it's not tandem center, or the pressure kickout is causing you issues....or just the sheer back pressure on the tank port.

Water under the bridge now.....cause it ain't gonna work without PB.

But I think you're on the right track now👍
 
/ why this is not working ??
  • Thread Starter
#18  
it’s working now … thank again
 

Attachments

  • 733D42BB-D60A-47EC-B298-BC021E8A0F8C.jpeg
    733D42BB-D60A-47EC-B298-BC021E8A0F8C.jpeg
    4.2 MB · Views: 115
  • C2166BD1-78CF-43A6-B8D1-B43CEEB6A986.jpeg
    C2166BD1-78CF-43A6-B8D1-B43CEEB6A986.jpeg
    4.8 MB · Views: 110
  • 161ACF72-93B1-46C0-BD79-AE5747F97BE0.jpeg
    161ACF72-93B1-46C0-BD79-AE5747F97BE0.jpeg
    2.4 MB · Views: 128
  • A0A2D93A-1AC6-4AB2-955C-DBF022D52EE4.jpeg
    A0A2D93A-1AC6-4AB2-955C-DBF022D52EE4.jpeg
    3.4 MB · Views: 121
  • 8A4B5E29-E10F-4B6F-9CCD-08C04DAB8A6B.jpeg
    8A4B5E29-E10F-4B6F-9CCD-08C04DAB8A6B.jpeg
    2.9 MB · Views: 123
/ why this is not working ?? #19  
New valve, Tandem center, and power beyond? (y) (y)
 
 
Top