ShadyTree
New member
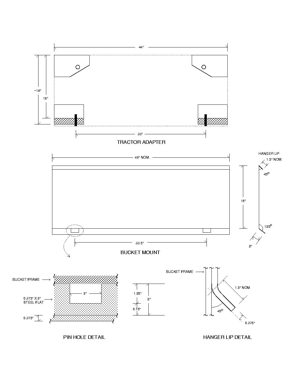
Does anyone have dimensions of Skid-Steer Quick-Attach Mount (Male Loader Side)? I'm trying to build one, saw uhmgawa and someone else posted dim's & pic's, but can't find 'em now. If anyone can help navigate to links or re-post, I'd sure appreciate it! Thanks,
