jadefox
Bronze Member
Hi, All.
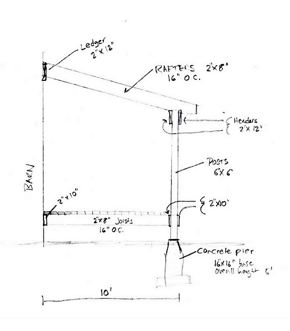
We're adding a 32'x10' shed to the side of the barn. Part of it will be for implement storage and part will be wood storage. We have a basic plan, and I was hoping to float it here for some feedback:
We will be using four pre-cast piers with 6x6 pt posts. The header and ledger boards will be 2x12s, and the rafters will be 2x8s. We'll double up two headers on either side of the 6x6 posts. We'll add 2x6 Y-bracing at each post.
The roof will be metal and I'm thinking steeper than 12:4 (we're in Maine).
Half of the shed will have a deck for wood storage.
We'll probably sheath the other half of the shed for more weather protection.
The big questions are: 1) Can I get away with just three piers? 2) If I use four piers, can I still use 16' 2x12s for the header even though they won't meet at a post? Otherwise I'd have to use three 12' board trimmed and meeting at each of the center two posts. Other thoughts?
Thanks in advance.
We're adding a 32'x10' shed to the side of the barn. Part of it will be for implement storage and part will be wood storage. We have a basic plan, and I was hoping to float it here for some feedback:
We will be using four pre-cast piers with 6x6 pt posts. The header and ledger boards will be 2x12s, and the rafters will be 2x8s. We'll double up two headers on either side of the 6x6 posts. We'll add 2x6 Y-bracing at each post.
The roof will be metal and I'm thinking steeper than 12:4 (we're in Maine).
Half of the shed will have a deck for wood storage.
We'll probably sheath the other half of the shed for more weather protection.
The big questions are: 1) Can I get away with just three piers? 2) If I use four piers, can I still use 16' 2x12s for the header even though they won't meet at a post? Otherwise I'd have to use three 12' board trimmed and meeting at each of the center two posts. Other thoughts?
Thanks in advance.
