Buying Advice New B3350

/ New B3350 #141  
I'm not arguing that this could be indeed narrower than a standard SSQA design (since I haven't seen one in person and I'm only going off the pictures/video), but I'm struggling to see where it differs in width. With those extensions at the top of the QA, it looks nearly identical in size to several others that I've compared it to.

Not only that, but the Kubota bucket also looks like it should work with standard SSQA compatible loaders. It would nice to have actual measurements on it to finally but this to bed! ;)

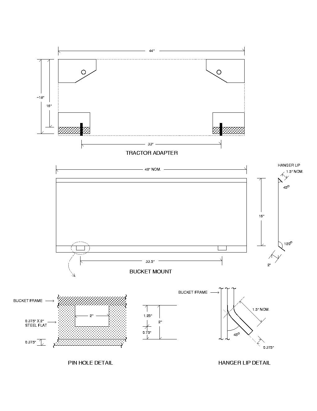
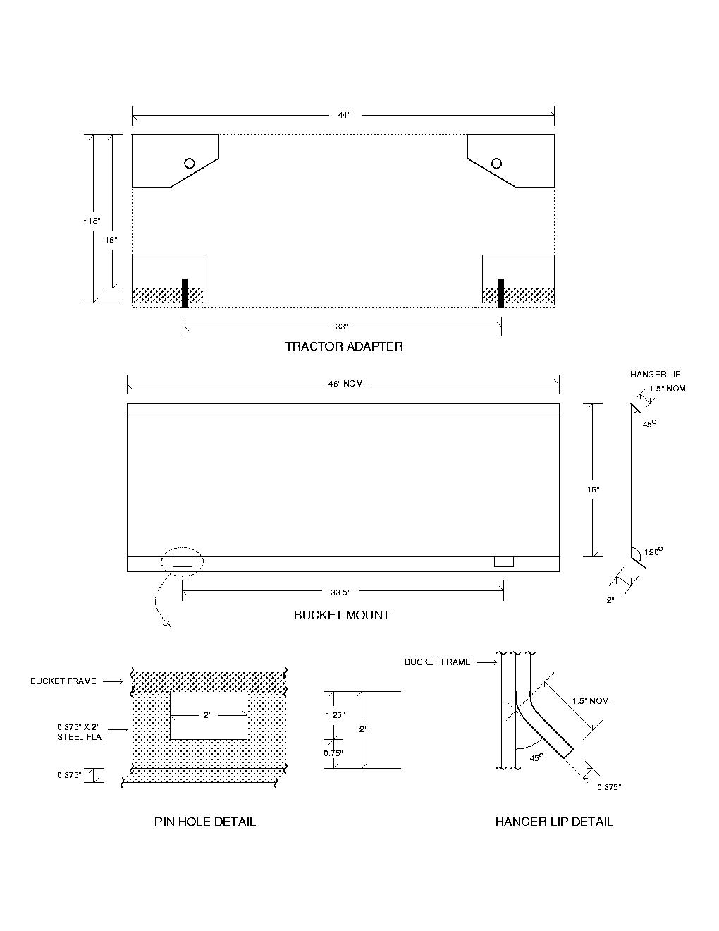
For the users who wanted to confirm the position of the pins in relation to the loader arms, see attached pictures. Also, the width of the QA pad is 44.5" and ~16" high. It was difficult to measure the height because of the curve at the bottom and the recessed notch at the top.
 

Attachments

  • IMG-20130504-00055.jpg
    IMG-20130504-00055.jpg
    120.7 KB · Views: 427
  • IMG-20130504-00056.jpg
    IMG-20130504-00056.jpg
    117.1 KB · Views: 397
/ New B3350 #142  
Here are the specs for SSQA
 

Attachments

  • 75291d1177387373-here-universal-attachment-mount-specification-sae_j2513.pdf
    512.2 KB · Views: 291
  • SSQA specs.jpg
    SSQA specs.jpg
    87.7 KB · Views: 348
/ New B3350 #143  
For the users who wanted to confirm the position of the pins in relation to the loader arms, see attached pictures. Also, the width of the QA pad is 44.5" and ~16" high. It was difficult to measure the height because of the curve at the bottom and the recessed notch at the top.

Thanks a bunch for taking the time to measure Kubota's new quick attach plate! So unless I'm misinterpreting the standard SSQA specs that were posted, this pretty much answers the compatibility question.
 
/ New B3350 #144  
I just got the call from the dealer that the new quick attach and the two buckets have arrived. I hope to be able to get to the dealer in the next couple of days and pick them up. Once I do that I'll measure everything out and we should know whether it's really SSQA compatible or not. I'm also supposed to be receiving the Virnig rock bucket I ordered this week according to the dealer - and that IS made to the SSQA standard - so I'll be able to really check it out with something that's allegedly SSQA and not of Kubota manufacture to see if everything interfaces correctly.
 
/ New B3350 #145  
I heard a rumor today that there's a brand new B50 tractor still in the crate at my dealer. Not sure if its a B3350 or not, but I sure hope it is (since I have dibs on the first one! ;) )
 
/ New B3350 #146  
I got the call yesterday - my quick connect and buckets came in. Stopped by the dealer this morning before heading to work and picked them up.

I did some quick measurements - and it looks like the dimensions match up to the SSQA spec, I'll take some more precise measurements against the spec tonite when I get them home.
 
/ New B3350 #147  
I got the call yesterday - my quick connect and buckets came in. Stopped by the dealer this morning before heading to work and picked them up.

I did some quick measurements - and it looks like the dimensions match up to the SSQA spec, I'll take some more precise measurements against the spec tonite when I get them home.

I figured as much once I saw the measurements provided by eb542. It just seemed really odd to me that Kubota would introduce a non-standard SSQA adapter when it could easily be made to fit that loader. Anyway, glad you got everything.

Post some pictures when you get it installed and setup.
 
/ New B3350 #148  
I figured as much once I saw the measurements provided by eb542. It just seemed really odd to me that Kubota would introduce a non-standard SSQA adapter when it could easily be made to fit that loader. Anyway, glad you got everything.

Post some pictures when you get it installed and setup.

I probably won't get a chance to get any precise measurements on this until the weekend - and the SSQA standard rock bucket I ordered is not showing up until next week so I won't get a chance to check that out until then- but it looks to me like it meets the standard. I ran a tape measure across all the crucial dimensions and they all pretty much match up with what I have seen detailed as the standard.

This page has a graphic showing the standard - there is some very slight deviation on the Kubota QA piece, for instance the graphic below shows 44" as the max width - and the Kubota QA is 44 3/8" across. If I add up the dimensions across the bottom for where the lockdown slot should be positioned and compare that to the dimension I got on the Kubota bucket - the Kubota bucket's slot is just a little bit off. But overall - it looks like it works.

Here's some other info: The QA adapter weighs in at 78 pounds. I am going to get a weight off my Kubota pin-on style QA when I take that off - I think the SSQA is heavier by a good amount ( like maybe 15-20 pounds).

I'm going to weigh the buckets too and see what kind of weight difference there is there. I think this setup is going to come in heavier than the pin-on QA setup overall. We'll see.

I also measured all of the dimensions where the SSQA adapter pins on to the end of LA504 loader arms - and all of that looks like it matches right up. The pin to pin spacing looks to be 7" on both. The width at the end of the bucket curl cylinders and the end of the loader arms is just a tad less than 2.5" - the space exposed on the pins for the loader arms and bucket curl cylinder matches to that. The width across the outside to outside of the mounting brackets on both the pin-on adapter and the SSQA adapter - is approximately 32".

In other words - this bolts right on.

The only possible thing I can see here that might "go wrong" is that there might be some sort of geometry problem with the curl stops or something like that - but once I get it connected I will run it thru the full range of motion and make sure there is nothing that looks out of place.

I'm psyched. FEL attachment nirvana here I come.
 
/ New B3350 #149  
I got the Kubota SSQA unit mounted onto my B3200 / LA504 over the weekend - and have run it thru all the movement and it seems to work fine. I don't see anything that hits or interferes.

I have to say that swapping buckets is WAY easier with the SSQA than it was with the pin-on QA adapter. I also spent a lot of time exchanging email with a vendor who is going to build a rock grapple to go on this setup - I passed a lot of photos and measurements to him - and it looks like this meets the standard. I need to go back and really measure the thing out precisely with a copy of the SSQA standard in front of me - but before I bother to do that - I think I'll just try it out on the rock bucket I ordered - which is supposedly arriving tomorrow.
 
/ New B3350 #150  
THe freight company dropped off the Virnig rock bucket this morning - and I went home quickly to try it out and get it out of the middle of the driveway where they left .

The Virnig bucket fits without any issues - it actually seems to fit a little "tighter" than the Kubota buckets do.

I think this pretty much confirms that the Kubota QA is made to the skid steer standard.
 
/ New B3350 #151  
THe freight company dropped off the Virnig rock bucket this morning - and I went home quickly to try it out and get it out of the middle of the driveway where they left .

The Virnig bucket fits without any issues - it actually seems to fit a little "tighter" than the Kubota buckets do.

I think this pretty much confirms that the Kubota QA is made to the skid steer standard.

Glad to hear. How do you like your Virnig rock bucket?
 
/ New B3350 #152  
THe freight company dropped off the Virnig rock bucket this morning - and I went home quickly to try it out and get it out of the middle of the driveway where they left .

The Virnig bucket fits without any issues - it actually seems to fit a little "tighter" than the Kubota buckets do.

I think this pretty much confirms that the Kubota QA is made to the skid steer standard.

I'm glad that it worked out for you without having to make major modifications to the attachments, bet you can't wait to get some time with your rock bucket on.

I wimped out, and ordered the pin on quick attach this week, the cost of going to SSQA was too expensive for me at this time, maybe in the future......
 
/ New B3350 #153  
Glad to hear. How do you like your Virnig rock bucket?

I played around with it for about 10 minutes before heading back to work - I like it. My intention on getting it was that I have a large pile of diggings that I need to move - and it's full of rocks. I wanted a quick way of sifting the rocks out as much as possible. It seems to do that - although it seems like I have to jiggle it around a little to really make all the dirt fall out. It looks like it might come in sort of useful for cleaning up brush and so forth too - I'll have to try it out for that when I get a chance.

I'm just glad it fits. That means other SSQA stuff should fit - and it will be very easy to make attachments that will just drop onto the QA - instead of having to deal with all of the alignment issues that come along with making a pin-on style attachment with brackets and so forth.

I saw a nice stump bucket on Craigslist the other day for a nice price - that wasn't too heavy. The weight issue is really the big issue - you've got to pick attachments carefully - because a lot of the skid steer stuff is way overkill (way too heavy) for use on the LA504 FEL.
 
/ New B3350 #154  
Got my B2650 (on turfs) a few days ago, here is the package:

60" mid mount mower
Grass catcher and boot kit
L534 loader
Quick attach
66" bucket
Rear work lights
Rear wheel spacers
Steering wheel spinner
Dual rear remote
42" HLA forks
Econor 66" rear snowblower with dual hydro chute adjustments.

Loader leaks on delivery, a/c will not function. Removed main lift cyl, new teflon tape, leak is gone. Opened radio compartment after much troubleshooting and found a disconnected wire in the cab liner, reconnected and all good.

1) You can't install the wheel spacers with the rear grass catcher, simply not possible. I would not even recommend using the spacers with the 60" deck either, not a safe setup. No clearance.

2) the loader is much more powerful than the L304 that was on my B2320

3) 66" bucket is not safe for heavy material handling, I selected this size only for snow.

4) steering wheel spinner, can't believe I used a tractor for 5 years without one.

5) rear work lights are extremely powerful, same in front.

6) quick attach is well worth the money

7) fork attachement is excellent, need more pallets to store all my stuff!

8 ) rear remotes took 2 months to order, nice clean setup, haven't used them yet

9) tractor is extremely tippy with full bucket and nothing in the back, CAUTION!

10) radio setup was easy, bought a Sony with bluetooth, cut the Kubota plug and rewired myself. Do not use the diagram that circulates on the web about using a Generic radio in a Kubota RTV, not a single wire was coded according to the diagram found in various forums. Had to remove the speakers to figure out the polarity, nuts are a pain since they fall in the cab ceiling liner when your unscrew the speakers. Have fun!

11) a/c works fine, heater is powerful

12) Cab, well I am impressed. Very well built, air tight, quiet and roomy. Seat is also good but suspension bottoms out right away even at full setting, I guess I am not the "average" tractor driver size/weight....

13) don't waste your time trying to figure out where to put the steering wheel spinner, the top center changes all the time and you end up with a spinner in a new position every time you jump back in.

14) cab speakers are Clarion 4", need to upgrade them very shortly and add two front speakers before the winter.

Will use the mower and bagger tomorrow, looks ok, but not much clearance under the deck when raised to the top for loader yard work.

Overall, night and day with my B2320, not for someone with lots of hills on his/her property.
 
Last edited:
/ New B3350 #155  
Got my B2650 (on turfs) a few days ago, here is the package:

60" mid mount mower
Grass catcher and boot kit
L534 loader
Quick attach
66" bucket
Rear work lights
Rear wheel spacers
Steering wheel spinner
Dual rear remote
42" HLA forks
Econor 66" rear snowblower with dual hydro chute adjustments.

Loader leaks on delivery, a/c will not function. Removed main lift cyl, new teflon tape, leak is gone. Opened radio compartment after much troubleshooting and found a disconnected wire in the cab liner, reconnected and all good.

1) You can't install the wheel spacers with the rear grass catcher, simply not possible. I would not even recommend using the spacers with the 60" deck either, not a safe setup. No clearance.

2) the loader is much more powerful than my previous L304 that was on my B2320

3) 66" bucket is not safe for heavy material handling, I selected this size only for snow.

4) steering wheel spinner, can't believe I used a tractor for 5 years without one.

5) rear work light are extremely powerful, same in front.

6) quick attach is well worth the money

7) fork attachement is excellent, need more pallets to store all my stuff!

8 ) rear remotes took 2 months to order, nice clean setup, haven't used them yet

9) tractor is extremely tippy with full bucket and nothing in the back, CAUTION!

10) radio setup was easy, bought a Sony with bluetooth, cut the Kubota plug and rewired myself. Do not use the diagram that circulates on the web about using a Generic radio in a Kubota RTV, not a single wire was coded according to the diagram found in various forums. Had to remove the speakers to figure out the polarity, nuts are a pain since they fall in the cab ceiling liner when your unscrew the speakers. Have fun!

11) a/c works fine, heater is powerful

12) Cab, well I am impressed. Very well built, air tight, quiet and roomy. Seat is also good but suspension bottoms out right away even at full setting, I guess I am not the "average" tractor driver size/weight....

13) don't waste your time trying to figure out where to put the steering wheel spinner, the top center changes all the time and you end up with a spinner in a new position every time you jump back in.

14) cab speakers are Clarion 4", need to upgrade them very shortly and add two front speakers before the winter.

Will use the mower and bagger tomorrow, looks ok, but not much clearance under the deck when raised to the top for loader yard work.

Overall, night and day with my B2320, not for someone with lots of hills on his/her property.

Nice review of it. Any tractor needs a ballast on the 3PH when using the FEL. Do you have any pictures of the tractor? Is the 2650 the same frame size as a B3200? How is the power with the a/c on?
 
/ New B3350 #156  
B2650 on turfs looks larger than the B2630/B3030/B3000 on R4 but it could be just the tires, not sure about the B3200 since I have never seen one. Didn't see any difference with a/c on or off. Plenty of power for what I do. I am very much aware of the requirement for ballast, but comparing my B2320 and the B2650 without anything in the back, the B2650 is dangerous.

One more thing, B2650 engine starts very quickly compared to my B2320, which needed much longer glow plug pre-warming.
 
/ New B3350 #157  
B2650 on turfs looks larger than the B2630/B3030/B3000 on R4 but it could be just the tires, not sure about the B3200 since I have never seen one. Didn't see any difference with a/c on or off. Plenty of power for what I do. I am very much aware of the requirement for ballast, but comparing my B2320 and the B2650 without anything in the back, the B2650 is dangerous.

One more thing, B2650 engine starts very quickly compared to my B2320, which needed much longer glow plug pre-warming.

The turf tires are a bit larger than the R4's (I compared both tire sizes at the dealer when I was trying to decide on which ones to get with the B3350.)

Also, what did you mean that the B2650 is dangerous as compared to the B2320? (It's over 800lbs heaver than the B2320.) Do you mean it feels a bit top heavy due to the cab?
 
/ New B3350 #158  
I used my B2320 often without ballast with the stock L304 and 47" bucket, just had to be careful and I felt safe. I do not recommend using the B2650 without a ballast, it is dangerous, especially with a larger bucket since you have a tendancy to load it up past safety rating. By using a larger bucket and heavier load on the L534, my comparison is not fair, but still it is a warning. Yes the higher center of gravity makes it tippy, this is why I ordered the wheel spacers, but as per my previous post I can't install them.
 
/ New B3350 #159  
I used my B2320 often without ballast with the stock L304 and 47" bucket, just had to be careful and I felt safe. I do not recommend using the B2650 without a ballast, it is dangerous, especially with a larger bucket since you have a tendancy to load it up past safety rating. By using a larger bucket and heavier load on the L534, my comparison is not fair, but still it is a warning. Yes the higher center of gravity makes it tippy, this is why I ordered the wheel spacers, but as per my previous post I can't install them.

Understood. Have you thought of loading the tires with RimGuard? It worked well with my B2620.

Also, was the Radio plug you cut out just the standard Kubota radio plug? img0830.jpg

Thanks!
 
/ New B3350 #160  
Yes that is the plug I removed. Not a fan of loading the tires, I like to be able to remove weight when required. I am taking off the grass catcher today, putting the spacers and will hook up the ballast box to see how it feels.
 

Marketplace Items

Meyer 8' Snow Plow w/ Bracket (A55272)
Meyer 8' Snow Plow...
2020 BOBCAT T770 SKID STEER (A62129)
2020 BOBCAT T770...
Decorative Turtle Statue (A61569)
Decorative Turtle...
2018 Isuzu FTR Landscape Dump Truck (A61568)
2018 Isuzu FTR...
JOHN DEERE 344H WHEEL LOADER (A63276)
JOHN DEERE 344H...
New/Unused Quick Attach Post Driver (A61166)
New/Unused Quick...
 
Top