Electrical issues

/ Electrical issues #2  
Hope this helps
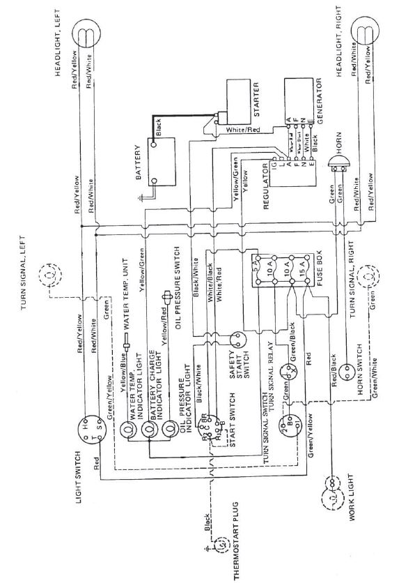
wiring2.JPG
 
 
Top