Your last generator Maintenance Run

   / Your last generator Maintenance Run #5,421  
In Olympia the 400 amp service is split to two 200 amp panels.

Off to the side is a Gen Tran 8 circuit box with each circuit having a 3-way switch... Utility-Off-Generator.

Like has been said it has important circuits set up for 5000 watt generator.

Of course someone capable has to be there to run Generator and switch loads.

Not ideal but economical...
That's how this house is currently setup, however I want to be able to run anything I need (mainly the water heater and A/C during the summer), winter I use wood stove so no resistant heat.
20220109_162505.jpg


Sent from my SM-G715U1 using TractorByNet mobile app
 
   / Your last generator Maintenance Run #5,422  
Makes sense and something I might do in the future if I made the move...

It's rented now so I don't want to be responsible for a generator from 800 miles away...
 
   / Your last generator Maintenance Run #5,423  
Makes sense and something I might do in the future if I made the move...

It's rented now so I don't want to be responsible for a generator from 800 miles away...
Can't say I blame you!

I wouldn't really care about running the a/c, but this house has soo many windows facing the mid to evening sun that it heats up really quickly.
I plan on putting a uv reflective film on the windows, but a multi-day outage during the summer with sunny days would be pretty unbearable as my wife and I both don't like to be hot (I would get zero sleep!)



Sent from my SM-G715U1 using TractorByNet mobile app
 
   / Your last generator Maintenance Run
  • Thread Starter
#5,424  
I'm sure a setup could be made from scratch, however I would have a lot of hrs in research and testing to get it right, so probably not worth it.

Sent from my SM-G715U1 using TractorByNet mobile app
That schematic will likely haunt me for a while :cool: , but I did go back and find the system I was thinking of.

It was RoyKing, in Gainesville. Post # 3622.

Your last generator Maintenance Run

He lists the model # of the Deep Sea controller he used; a search for that may turn up tech docs....

(I guess my mind had conflated that ^ to Sea + King.... :rolleyes:).

Two pages later, he describes some of the tuning he did to match the controller to the application. (Post # 3642).

Rgds, D.
 
Last edited:
   / Your last generator Maintenance Run
  • Thread Starter
#5,425  
Searching for Roy's system, I came across this post from CM, that begins with...

"Simplicity is king when it comes to reliability. Over the last dozen years complexity of engines, controls and emissions has increased several fold and reliability has suffered."..... (@ Top of Page)

Your last generator Maintenance Run

..... followed by several cogent paragraphs that sum up well the state of industrial product life-cycles (or lack thereof) today.

Re-posting that ^ above, as it illustrates the business-case for an independent company being able to market Generic Controllers - IMO, they don't even have to drop their price crazy low, all they really have to do is legitimately deliver on longer life-cycle support (in a reliable product), and seasoned techs will find them valuable....

Rgds, D.
 
   / Your last generator Maintenance Run #5,426  
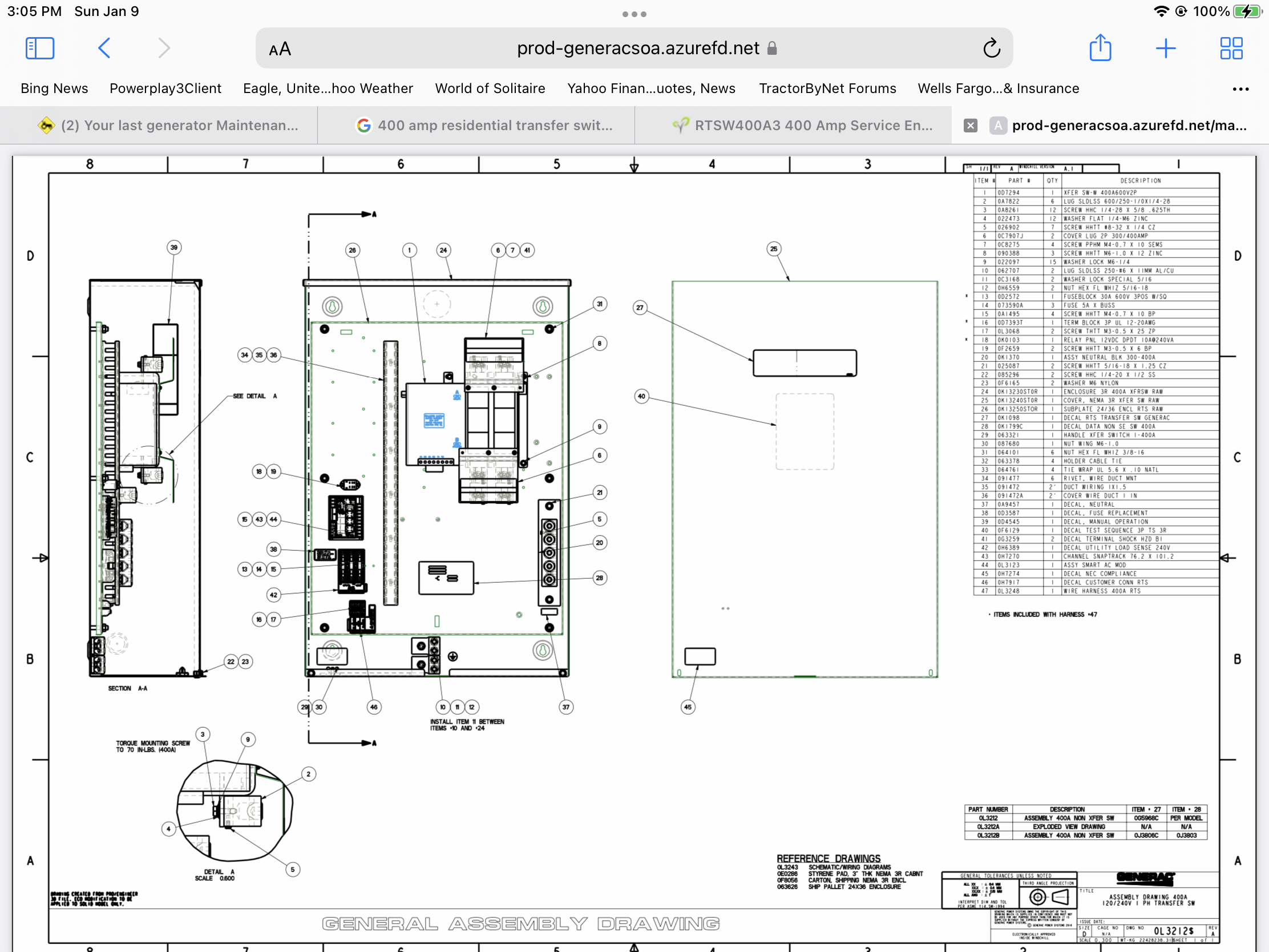
the 400 amp generac switch has a single 400 amp rated switch, at least the ones i installed years ago. They were so damn expensive, hardly anyone uses it UNLESS you have a generator that outputs greater than 200 amps, than you cant use a 200 amp or double 200’s. In this case, you HAVE to use the larger switch.

parts manual for 400 amp switch….single mechanism

7372EA27-0596-46F4-98F4-806EE596253C.png

467ABD25-9D5B-48DE-9829-928432EB1A47.jpeg
467ABD25-9D5B-48DE-9829-928432EB1A47.jpeg


if your lucky you have a meter set on a pedistal away from the house and you can add the transfer switches and generator away from the house. A big issue is where do you place the switches. They are aprox 14” x 30” units.

you can use an older generac switch on a newer generator with minor modifications (adding a fuse block for T1 power). You can use a newer generac transfer switch on an older generator, but the enclosed load shed module most likely wont work (its a crapshoot whether the older governor controlled generators will provide true enough waveform for the SACM load sheds used today, as compaired to the electronically controlled newer units). But you can always add SMM load shed modules, as these remotely sense a drop in frequency and shed a load. Be aware though, there are a series of generac units out there…..not sure of the model number though, that only came from factory with 58 hz output. Have no idea why this was done. They play havoc with the SMM load shed modules, and make clocks run slower when on generator.
 
Last edited:
   / Your last generator Maintenance Run
  • Thread Starter
#5,427  
A lecture-hall worth of Controller 411.... thanks much grs !

Be aware though, there are a series of generac units out there…..not sure of the model number though, that only came from factory with 58 hz output. Have no idea why this was done. They play havoc with the SMM load shed modules, and make clocks run slower when on generator.

That ^, I would not have guessed.....

Rgds, D.
 
   / Your last generator Maintenance Run #5,428  
58Hz will be to ensure that any solar and or battery system connected shuts down. Victron use frequency shift in their inverters to shut down AC coupled solar panels. Fronius use it similarly too.
 
   / Your last generator Maintenance Run #5,429  
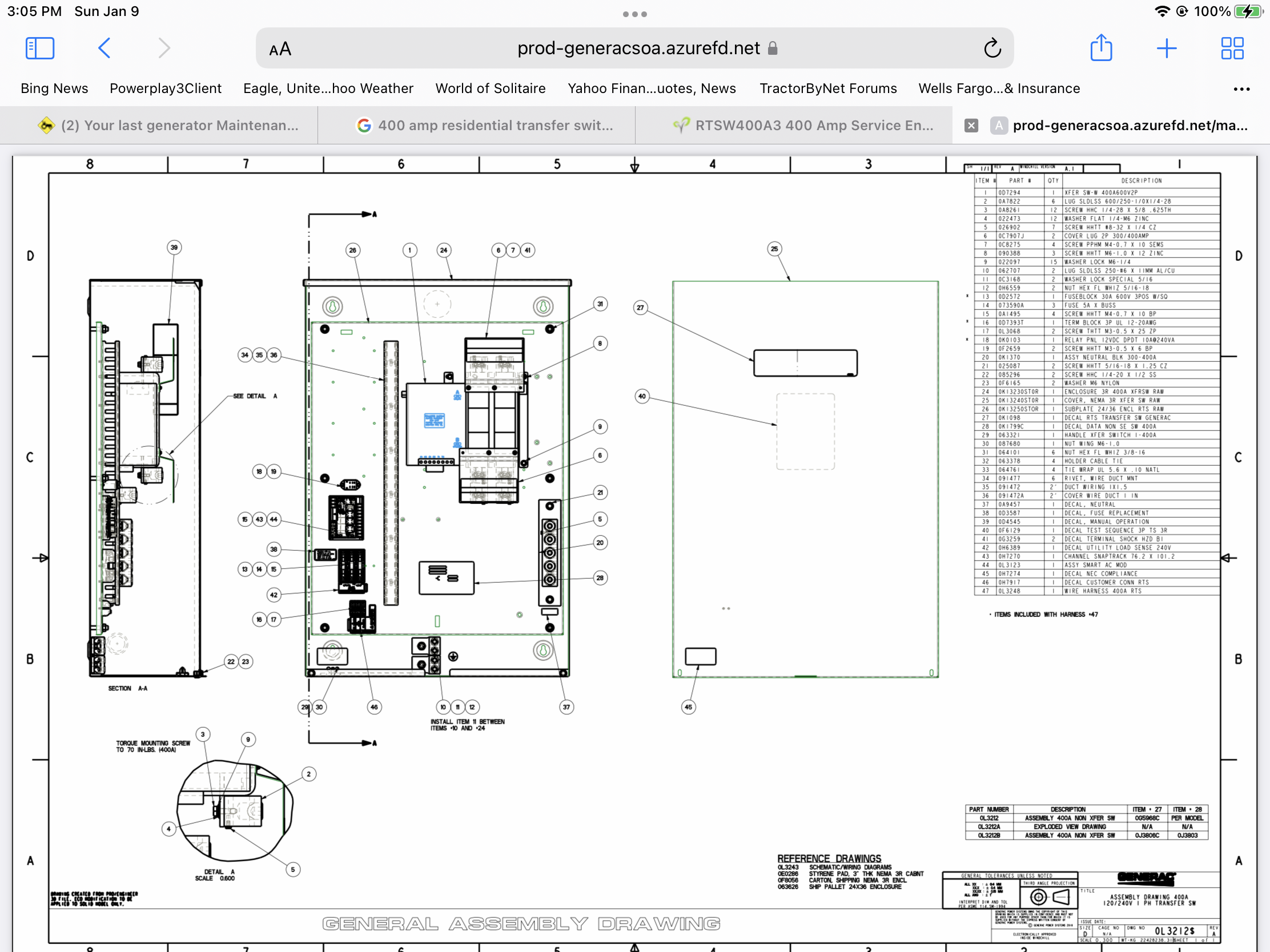
the 400 amp generac switch has a single 400 amp rated switch, at least the ones i installed years ago. They were so damn expensive, hardly anyone uses it UNLESS you have a generator that outputs greater than 200 amps, than you cant use a 200 amp or double 200’s. In this case, you HAVE to use the larger switch.

parts manual for 400 amp switch….single mechanism

View attachment 728574
View attachment 728576View attachment 728576

if your lucky you have a meter set on a pedistal away from the house and you can add the transfer switches and generator away from the house. A big issue is where do you place the switches. They are aprox 14” x 30” units.

you can use an older generac switch on a newer generator with minor modifications (adding a fuse block for T1 power). You can use a newer generac transfer switch on an older generator, but the enclosed load shed module most likely wont work (its a crapshoot whether the older governor controlled generators will provide true enough waveform for the SACM load sheds used today, as compaired to the electronically controlled newer units). But you can always add SMM load shed modules, as these remotely sense a drop in frequency and shed a load. Be aware though, there are a series of generac units out there…..not sure of the model number though, that only came from factory with 58 hz output. Have no idea why this was done. They play havoc with the SMM load shed modules, and make clocks run slower when on generator.
I figured it out, I was thinking of the B&S transfer switch, Briggs & Stratton 71057 400-Amp Split Service Automatic Transfer Switch + AC Shedding Service Disconnect

Looks like what I would need for my setup and less expensive then 2-200a Generac units! Would just take a bit more work to get everything functional but the hardware would be there at least.

Sent from my SM-G715U1 using TractorByNet mobile app
 
   / Your last generator Maintenance Run
  • Thread Starter
#5,430  
58Hz will be to ensure that any solar and or battery system connected shuts down. Victron use frequency shift in their inverters to shut down AC coupled solar panels. Fronius use it similarly too.
Interesting. I'm now wondering how common this is....

Synchronous motors are less plentiful than when I was a kid, but still around...

Rgds, D.
 

Tractor & Equipment Auctions

N14 TURBO (A54756)
N14 TURBO (A54756)
BUSH HOG 1815R1 BATWING MOWER (A51406)
BUSH HOG 1815R1...
PAIR OF 5' CLIP ON TRAILER RAMPS (A54756)
PAIR OF 5' CLIP ON...
2004 Ranger 195 VX Comanchee Bass Boat with Trailer (A54865)
2004 Ranger 195 VX...
2015 Chevrolet Silverado 1500 4x4 Crew Cab Pickup Truck (A55788)
2015 Chevrolet...
2014 John Deere 244J (A47477)
2014 John Deere...
 
Top