Need some design help

   / Need some design help #51  
2" square with 1/4 walls will be more than sufficient to your task. Reese uses the same material, and the forces on those hitches can reach 15000#.
A 12" overlap will be more than sufficient as long as the tubes are relatively a tight fitup.
The only thought I have to add, assuming your'e using desing 27.6.R would be to goosneck the toung to the 5th to insure sufficient clearance over the tail of the tractor going over speedbumps and knolls.
_____________
/ \
\
\____.__!___
\_____
( )
This diagram looked perfect when I did it, it's the board's fauylt
 
   / Need some design help
  • Thread Starter
#52  
My concern was that from the crossmember I'll be attaching to the top flange of the frame rails I'll be coming back around 18" then coming down about 30" to the ball mount all without any lateral support whatsoever. That just seemed like a long way for 2" tube stock to go with no lateral support.

I agree that Reese uses the same stock but I don't think they go anywhere near that distance with it. As to speedbumps, etc., I think the ball and coupler will more than handle that. I want the fifth wheel hitch assembly to be as stable as possible.

I'm sure I'll get some good input and CAD diagrams on this yet. I'm hoping WHarv can give me something definitive on the material I need (hint, hint /w3tcompact/icons/smile.gif ). Thanks a bunch for all the help thus far everyone. You'll likely never really know how much I really appreciate it. /w3tcompact/icons/smile.gif
 
   / Need some design help #53  
Shoot Gary, I got the model #s mixed up. I thought you were just going to extend the toung of the dolly.
I checked a dolly today, and that toung is only 3x3x1/8 tube.
On the 30" drop, I'd probably go with 4x4 tube, and pierce thru it with a piece of 2.5" at the top to tie it into the piece of 2" square coming back from the 5th wheel. That would give you more flexibility in terms of the distance from the 5th pin back to the hitch vertical member.
Reese uses 2x2 for cross members on a lot of hitches, and many of them span almost 4 feet, and carry a lot of torque on the cross member. Unless you're talking about something like a Humvee as a chase car, I don't think it would be a problem. I also think you may be a tad off on the 36" drop, seems to me the tail ends of most tractors nail me between the knee and hip when I walk too close behind one in the dark, but I don't have a bruise available for measurement right now.
 
   / Need some design help
  • Thread Starter
#54  
<font color=blue>"I also think you may be a tad off on the 36" drop"</font color=blue>

Franz,

I'd estimate the drop around thirty inches. Typical fifth wheel height is 48 inches and typical ball mount height is eighteen inches. I'd rather have something that will work with thirty inches and only need it to work with a few inches less than overtax something.

I'm not surprised at the tongue material for a dolly being as light as it is. There is virtually no tongue weight involved as those dollies are very well balanced. I've actually lifted the tongue of a loaded dolly to unmount it from one tow vehicle and put it on the ball of another one.

I'd be concerned about welding an upright piece to that material for a fifth wheel mount. I think it could be too much stress for the dolly tongue itself in an emergency braking situation.
 
   / Need some design help #55  
<font color=blue>I'm not surprised at the tongue material for a dolly being as light as it is. There is virtually no tongue weight involved as those dollies are very well balanced. I've actually lifted the tongue of a loaded dolly to unmount it from one tow vehicle and put it on the ball of another one. </font color=blue>

Gary,

Does the fifth wheel need a min amount of tongue weight to keep it together ? (I'm not familiar with them)


<font color=blue>I'd be concerned about welding an upright piece to that material for a fifth wheel mount. I think it could be too much stress for the dolly tongue itself in an emergency braking situation.

</font color=blue>

Maybe the trailer (not dolley) design is a sturdier option. you could make the fifth wheel hitch as beefy as you want to be comfortable that it will withstand the braking forces.
 
   / Need some design help
  • Thread Starter
#56  
There's no minimum tongue weight to keep a kingpin in a fifth wheel. The kingpin design keeps it from coming 'up' out of the fifth wheel and the locking mechanism of the fifth wheel keeps the kingpin from coming 'back' out of the fifth wheel.

I know a fifth wheel trailer would be a slick deal but that would mean always sendig a full size truck with a fifth wheel to haul it. That gets pretty expensive and proprietary for me, I'm afraid. /w3tcompact/icons/frown.gif
 
   / Need some design help #57  
Gary,

Sorry it took a while to get back on this thread, it got burried on TBN.

As far as tubing sizes go, poke around a trailer dealer a bit. (not a semi trailer dealer, but someone who has conventional car trailers, tag a longs & fifth wheel or goosenecks). Check out the fifth wheel & gooseneck trailers. That will give you a reference point to size your tubing.

You'd be amazed at how accurate your eye is at judging strength of a design. 2" tubing looks a little puny to me. If it don't look right to you, you will be nervous driving it. 'nuff said.

<font color=blue>There's no minimum tongue weight to keep a kingpin in a fifth wheel.</font color=blue>

In that case, go for modifying the car dolley. I still vote for making it semi-permanently mounted on the dolley and swing it around to attach to the semi-tractor. I think once you size your tubing, you may not want to break down/ set up the "tongue".

I say semi permanent because you may want to use the dolley in the conventional manner. I'm assuming you have some kind of lift to take it off at your shop. You could always use your FEL/w3tcompact/icons/grin.gif

Let me know if we can be of any help.
 
   / Need some design help
  • Thread Starter
#58  
I talked with a manufacturer of a dolly who told me the main structure onto which the wheels are mounted is 4" x 4" x 1/4" steel tubing. Armed with that knowledge, the latest incarnation of this plan is to see if I can get them to build me one using that material as stock for the tongue as well. The standard tongue has two bends in it which would need to be replicated. One brings the tongue up from under the front bumper of the towed vehicle up to hitch height and the other goes from that angled section forward to the coupler level parallel with the ground. I'd have to accomplish those two angles by cutting and welding the tube stock.

The stock weighs approximately 1.1 lbs. per linear inch. I'll be adding approximately sixty pounds to the weight of the bare tongue this way. I'd also want to add 12"-18" upright piece near the coupler over which my fifth wheel tongue will attach. That would bring the additional weight to around eighty pounds higher. With that much of a weight addition I'll add a trailer jack.

I'm thinking the 'removable' portion might have to be in as many as three pieces because of the weight. One would come up from the fixed upright on the dolly tongue and include the 90 degree corner and gussets there. Another would have the kingpin and plate for the fifth wheel while a third would be a straight piece connecting the other two and by which length adjustments could be made. I might be able to eliminate this piece and just lengthen the other two if they don't get too heavy.

While I agree I may not want to breakdown/set up the fifth wheel tongue, I don't see how I'll have much of a choice. I can't have the driver tow the dolly with the fifth wheel tongue and kingpin/plate above the car so it has to be able to be turned around to allow it to be towed to the truck. Even if it would be high enough to clear the car top turning a corner would put the kingpin in the other lane (and possibly into someone else's windshield or through their grille). /w3tcompact/icons/hmm.gif

Assuming I've explained the above well enough, please give me your opinion or any other ideas on the plans. Thanks. /w3tcompact/icons/smile.gif
 
   / Need some design help #59  
<font color=blue>While I agree I may not want to breakdown/set up the fifth wheel tongue, I don't see how I'll have much of a choice. I can't have the driver tow the dolly with the fifth wheel tongue and kingpin/plate above the car so it has to be able to be turned around to allow it to be towed to the truck. Even if it would be high enough to clear the car top turning a corner would put the kingpin in the other lane (and possibly into someone else's windshield or through their grille). </font color=blue>

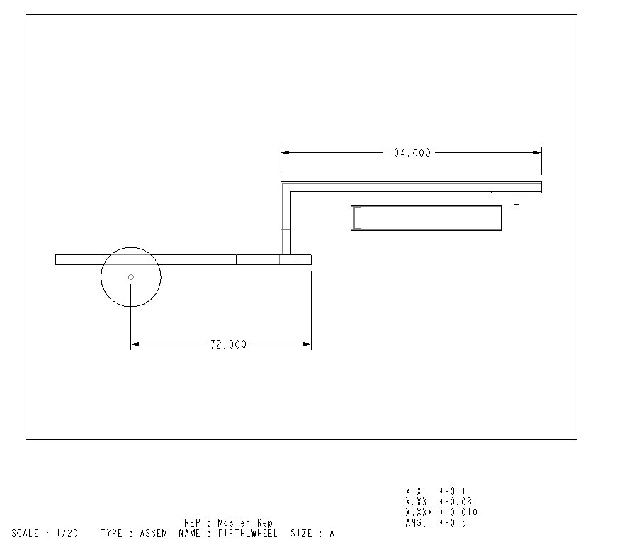
Gary,

I think you may be able to tow it with the rotating tongue & not hit other cars. See attached pictures. I made some assumptions on dimensions, please correct me if they are wrong.

Dolley w/ tongue in stowed position
 

Attachments

  • 6-200820-fifth_wheel.jpg
    6-200820-fifth_wheel.jpg
    27 KB · Views: 68
   / Need some design help #60  
Dolley w/ tongue in towing position.

Here's the procedure for hooking up the semi tractor.

Park dolley in accessable area.

Jack up with tongue jack

Swing fifth wheel tongue around.

Back semi trailer under tongue

lower tongue jack.
 

Attachments

  • 6-200823-fifth_wheel_extended.jpg
    6-200823-fifth_wheel_extended.jpg
    26.6 KB · Views: 77

Tractor & Equipment Auctions

2003 Walk-Behind Automatic Seed Spreader (A55851)
2003 Walk-Behind...
2017 Ram 4500 Bucket Truck (A55302)
2017 Ram 4500...
2014 DRAGON 130 BBL STEEL VACUUM TRAILER (A58214)
2014 DRAGON 130...
2022 Ford Explorer 4WD SUV (A56859)
2022 Ford Explorer...
PALLET OF WOOD & DOORS (A58374)
PALLET OF WOOD &...
Kawasaki KLX140L Dirtbike (A59225)
Kawasaki KLX140L...
 
Top