Kubota M59 Hard Steering when cold

/ Kubota M59 Hard Steering when cold #1  

Pushrodder

New member
Joined
Feb 22, 2022
Messages
5
Tractor
Kubota M59 TLB
Good evening! I am new to this forum or any type of forum for that matter. A little out of my element but I hope someone has had the same issue and can help me out. I have a Kubota M59 TLB and just overnight the steering is hard just like no power steering. I lift the wheels off the ground and it is still the same. It is really hard to steer cold but gets better but not 100 percent correct when hot and using it harder while loading dirt. All of the other hydraulics seem fine. There are no leaks anywhere. I thought it could be fluid or filters so I just changed the three hydraulic filters underneath and new fluid from Kubota. I thought it might be the steering cylinder but that didn't add up that it gets better warm. The next thought was the controller or a stuck bypass but I don't want to just throw parts at it. It definitely isn't any mechanical steering bind. The tractor has 700 hours on it. Any input would be greatly appreciated.

Thanks,

Dennis
 
/ Kubota M59 Hard Steering when cold #2  
If you lift the front wheels off the ground with the FEL, to they turn easily? Front axle lube? I think with the wheels up and engine off I can turn, angle the wheels.
 
/ Kubota M59 Hard Steering when cold #3  
I noticed my my m59 and m62 were weak with the power steering. Mainly when buckets were loaded, you couldn’t turn steering unless you were moving. But yours sounds pretty bad I think the street has its own pump. I wonder if yours is going out.
 
/ Kubota M59 Hard Steering when cold #4  
Welcome to TBN. Don't know about your model. Does it have 4wd? It may be an issue of hydraulics. But I think I would take a little lube out of the front axle gears to see what they looked like. Could it a bearing issue there?
 
/ Kubota M59 Hard Steering when cold #5  
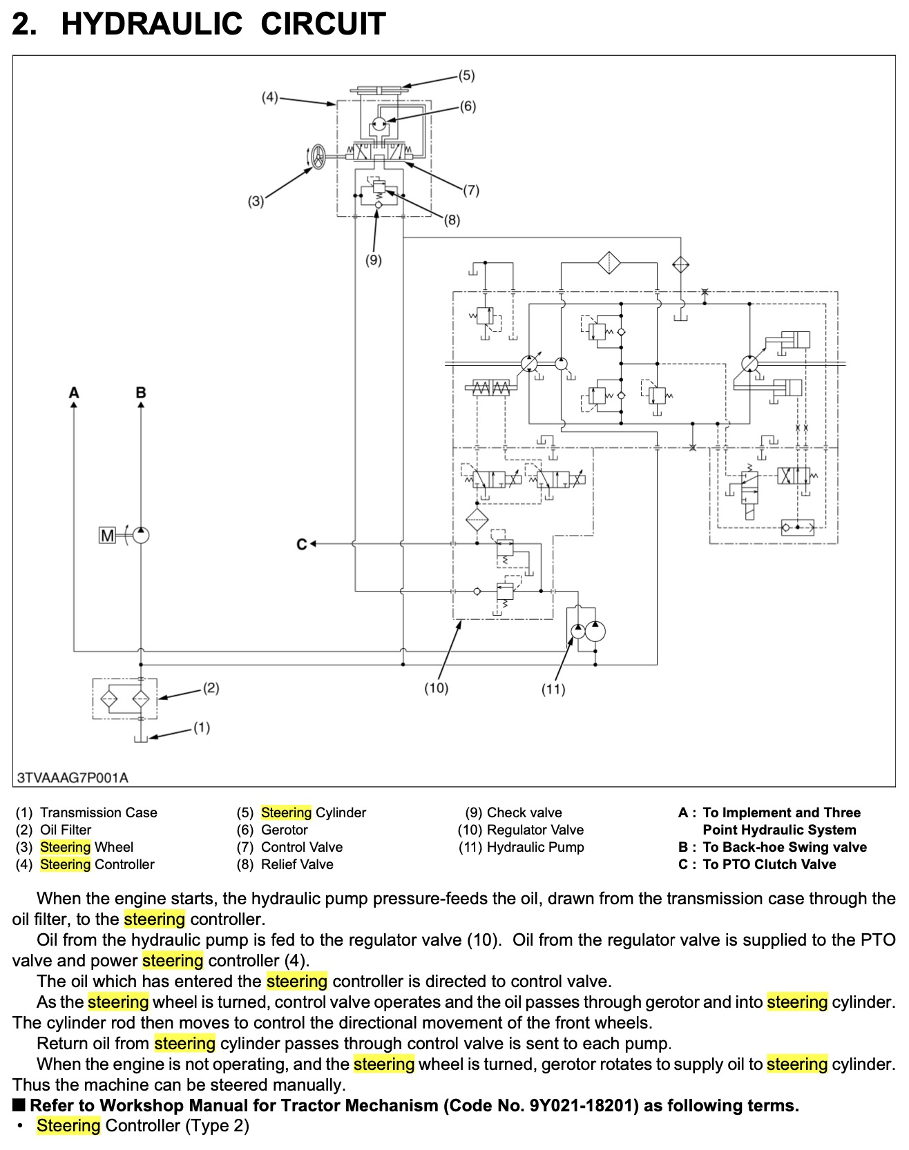
Typically hard steering is lack of flow and or pressure to the steering unit. Any way to check pressure on the steering circuit. Might have to turn full lock to build pressure.

would be nice to have hydraulic schematic to see if brakes are on the same circuit.
 
/ Kubota M59 Hard Steering when cold
  • Thread Starter
#6  
If you lift the front wheels off the ground with the FEL, to they turn easily? Front axle lube? I think with the wheels up and engine off I can turn, angle the wheels.
I lift my front wheels with the loader and it is still the same. the front axle lube is full and very clear. Yes, if the engine is off I can turn the wheels both ways and it takes about the same pressure as it does running.
 
/ Kubota M59 Hard Steering when cold
  • Thread Starter
#7  
I noticed my my m59 and m62 were weak with the power steering. Mainly when buckets were loaded, you couldn’t turn steering unless you were moving. But yours sounds pretty bad I think the street has its own pump. I wonder if yours is going out.
I believe it is the steering controller, pump or bypass but not sure which. It is definitely hydraulic related
 
/ Kubota M59 Hard Steering when cold #8  
Greasing the wheel hub support bearings? I use a needle thru the boot to grease the tie rod ends. Bent steering cylinder rod? Trace the hydraulic lines to see any pinch or kink?
Service manual to check pump pressure.
 
/ Kubota M59 Hard Steering when cold #9  
I believe it is the steering controller, pump or bypass but not sure which. It is definitely hydraulic related
Agreed. I’m not savvy enough to figure out which one but I’d wager it’s steering pump. The machine has 2 pumps plus a specific steering pump.

it’s not lube related imo.
On edit here is the power steering system. You can see the 2 feed lines. I may be wrong about it’s own pump. The reason it sticks with me about having its own hydraulics is because I thought it was mentioned when my m59 lost both hydro pumps at 75hr. When I think back the steering was also effected it seems. The way it started for me me is loader got real weak. If it does not have its own pump then it’s tied to one of the 2 pumps. Check backhoe for strength. The swing is separate from all other functions, so try to move dirt sideways and dig to see if both circuits are strong. If they are and there is no separate pump it’s probably one of the components in diagram. Would help to put guage on lines that feed steering controller then guage on line going to cylinder. Like I said the steering on these are kinda weak to begin with for what they can carry
 

Attachments

  • 28BF0F92-06B6-4D7D-9F09-B116B590B3F2.jpeg
    28BF0F92-06B6-4D7D-9F09-B116B590B3F2.jpeg
    593 KB · Views: 205
Last edited:
/ Kubota M59 Hard Steering when cold #10  
Some more detail for you
 

Attachments

  • steering1.jpg
    steering1.jpg
    662 KB · Views: 213
  • steering2.jpg
    steering2.jpg
    828.8 KB · Views: 218
/ Kubota M59 Hard Steering when cold
  • Thread Starter
#11  
Thanks for that diagram and information. I believe you are right about that. I will get a gauge and some fittings and test pressure. I won't be able to flow test but hopefully pressure will tell me where the loss is.
 
/ Kubota M59 Hard Steering when cold #12  
Well I hope its something simple like a check valve. I got rid of my m62 to get a kx040 but if they do a factory cab i will be back to the m59/m62 platform. The m62 was hard to get rid of with such a small machine that dug 14’.
 
/ Kubota M59 Hard Steering when cold
  • Thread Starter
#13  
Thanks for all the help. I did just fix my problem and it is amazing what it was. I was going to check the pump pressure before and after the steering controller which is located below the steering wheel by the floorboard behind the lower shield. As soon as I got in there and exposed it I saw some rust on the steering wheel shaft splines which was strange. So I dropped the controller off of the steering shaft and the steering wheel was just as tight as before. That bearing below the steering wheel shaft u-joint froze up. It is mounted to the top of the hydraulic steering controller. I just replaced it and the tractor steers with one finger now! I am not sure it ever steered this easy before. I used a slightly different bearing that is sealed on both sides now so it shouldn't be able to get water or dust inside it again. If you own an M59 and the steering is the least bit stiff I would check this out. Thanks everyone for the help!
 
/ Kubota M59 Hard Steering when cold #14  
Holy crap thats good.

as far as what I experienced weight in the bucket made it hard to steer. Full bucket of gravel in soft dirt you were not turning the steering.
 
 
Top